Дизайн 2 комнатной хрущевки 42 квадратных метра: особенности ремонта в «хрущевке» без перепланировки, идеальные решения по планировке двухкомнатной квартиры со смежными комнатами
особенности ремонта в «хрущевке» без перепланировки, идеальные решения по планировке двухкомнатной квартиры со смежными комнатами
Владельцам небольших квартир приходится с особой тщательностью обдумывать дизайн интерьера. Хочется, чтобы квартира была уютной и современной, с располагающей обстановкой. Материал данной статьи подскажет, какие идеи дизайна сегодня актуальны, как лучше спланировать и оформить комнаты и санузел в квартире площадью 42 кв. м.
Особенности планировки
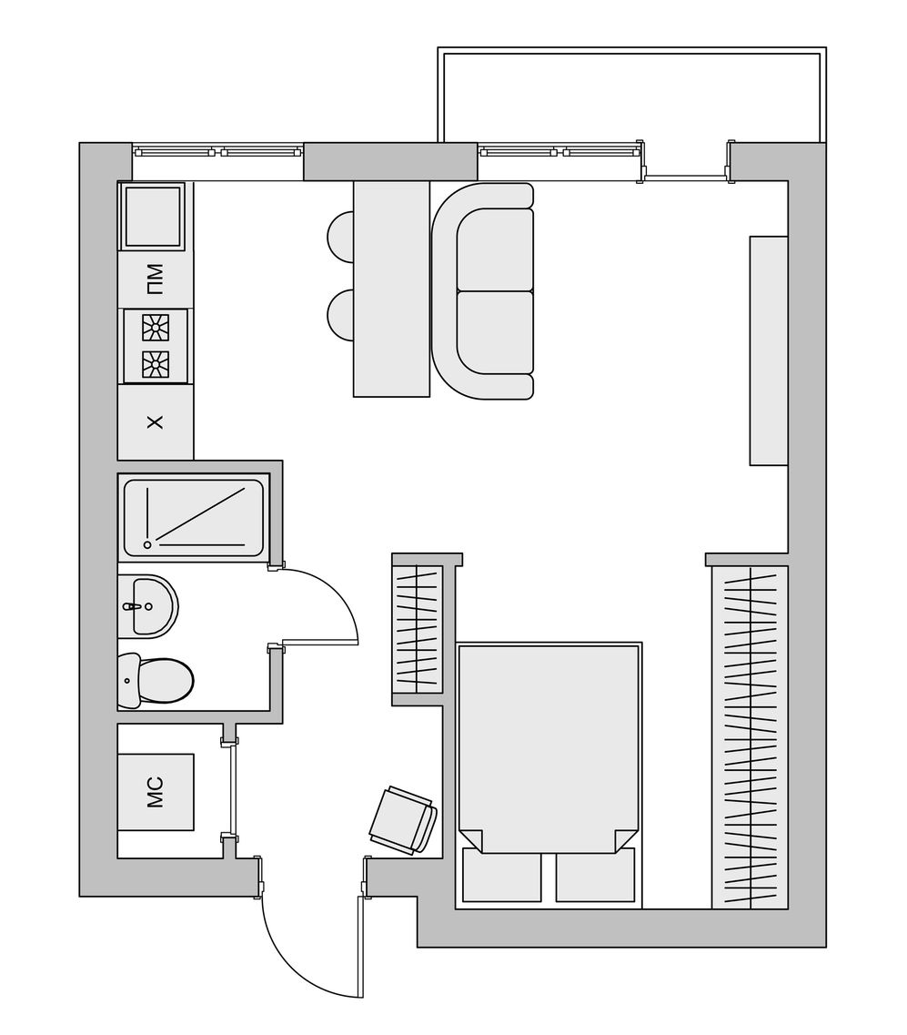
Планировка большинства «двушек» старого образца не отличается особым удобством. Имея всего 42 кв. метра, сложно замахнуться на что-то масштабное. Типовой планировкой «хрущевок» является так называемая «книжка». В таких квартирах есть общая проходная и смежные комнаты. Это не самая лучшая планировка.
Когда расположение стеновых перекрытий не самое удобное, может возникнуть вопрос о частичном сносе перегородок или совмещении, например, кухни или спальни с балконом путем удаления стены до подоконной части.
Планировка должна быть продуманной и максимально функциональной. Еще до начала ремонта двухкомнатной квартиры площадь планируют таким образом, чтобы хватало места для сна, отдыха, хранения вещей, а также санузла. При этом зачастую приходится отталкиваться от расположения коммуникаций, дверных проемов, имеющихся выступов и ниш.
Евродвухкомнатная квартира площадью 42 кв. м создается и из «однушки».
Подобное жилье может иметь планировку с лоджией и даже кладовкой. Санузел у него бывает совмещенным и раздельным.Зонирование пространства
Чтобы дизайн двухкомнатной квартиры площадью 42 кв. м в «хрущевке» получился современным и эстетически привлекательным, необходимо правильно организовать пространство каждого помещения. Идеальным решением станет разделение каждой комнаты на функциональные зоны.
Это позволит внести в интерьер ненавязчивую организацию и сделать квартиру более уютной даже без перепланировки.
Зонировать любое помещение можно посредством:
- цвета настенного, напольного и потолочного покрытия;
- выбора и размещения настенных и потолочных светильников;
- создания ограждений из имеющихся элементов меблировки;
- использования разного по цвету материала облицовки, мебели;
- создания разных по назначению функциональных островков.

Оформление
Отделка небольшой квартиры подразумевает учет нескольких основных критериев:
- цветовая гамма должна быть светлой, используемые тона – мягкими и благородными;
- светильники могут иметь разную форму, но небольшой размер и лаконичный дизайн;
- в интерьере допускается использовать контраст с использованием не более 4 оттенков;
- за основу целесообразнее выбрать минималистичные современные направления дизайна;
- мебель должна быть линейной, эргономичной и оптимально функциональной.
Важно использовать минимум аксессуаров, создавать эффект визуального простора и легкости.
В приоритете не слишком объемная мебель из фанеры, древесины и металла.
Отделочные материалы не должны быть пестрыми, нежелателен крупный рисунок на стенах. Текстиль подбирают эстетически привлекательный и практичный.
Зал
В зале можно обустроить 2 зоны: гостевую и место отдыха. Место приема гостей обустраивают компактным диваном и чайным столиком. Мебель можно расположить у стены, напротив ТВ-зоны. Чтобы комната не казалась маленькой, нужно выбрать светлую отделку стен, а также современные шторы (роликовые, плиссе, римские, классические на люверсах или кольцах). Материал занавесей может быть легким, воздушным. Приборы освещения здесь должны быть компактными, что создаст эффект увеличения комнаты.Спальня
Вместо уходовой зоны в спальне можно обустраивать рабочий уголок. Кровать здесь располагают таким образом, чтобы оставалось место для свободного передвижения по комнате. Цветовое решение интерьера должно быть светлым, исключены темные тона и крупные принты на стенах. В узкой комнате мебель располагают линейным способом.Чтобы визуально увеличить помещение, в дизайне используют зеркала.
Кухня
Несмотря на единство цветового решения всей квартиры, оттенок интерьера кухни может быть динамичным. Маленькое пространство обставляют мебелью с упором на функциональность. В приоритете банкетки, мягкие уголки со стульями или табуретками. Можно обустроить комнату узким диваном углового типа. Кухонная мебель должна иметь практичную влагостойкую обивку. Пространство делят на 2 зоны: готовки и столовую, обустраивая помещение с учетом правила рабочего треугольника.
Прихожая
Планировка прихожей обычно линейная. Размещение мебели вдоль стены экономит полезную площадь. Возле входа можно расположить узкую прихожую или вешалку с зеркалом. Здесь же ставят пуф или банкетку, необходимую для более удобного обувания. Отделочные материалы стен здесь должны быть практичными и долговечными. В приоритете моющиеся обои или стеновые панели из пластика.
Санузел
К обустройству и планировке сантехнического узла нужно подходить основательно. Сантехнику покупают в едином стиле и цвете, подбирая примерно одинаковые по форме элементы меблировки. Для эффекта единства дизайна к сантехнике приобретают одинаковую фурнитуру. Расставляют каждый предмет исходя из соображений безопасности пользователей. Пространство делят на 3 зоны: мытья, мойки и туалет (если санузел совмещенный).
Ванну стараются отгородить от остальных зон посредством частичных или полноценных ширм.
Выбор мебели
Мебель для небольшой квартиры имеет несколько характерных особенностей. Она компактна, эргономична, функциональна. Если это диван, то обязательно с механизмом трансформации, позволяющий расположить на ночь припозднившихся гостей.
Если банкетка, то с откидной крышкой и ящиком для хранения каких-либо необходимых в быту вещей. Если уголок, то мягкий, с ящиком, мягкими подлокотниками или встроенными полками.Цветовое решение мебели должно быть родственным во всей квартире. При этом оттенки цвета могут отличаться степенью насыщенности. Форма, стиль и дизайн подбираются примерно одинаковыми. Это создаст эффект единства в оформлении интерьера.
Стиль элементов меблировки должен быть единым, что может проявляться в отделке и декоре.
В основной комплект мебели для обустройства всей квартиры стоит включить функциональный диван (линейного либо углового типа), уголок, журнальный столик, шкаф для одежды, рабочий и туалетный стол, кровать, прихожую, обеденный стол и стулья. Покупка тумб будет зависеть от функциональности шкафов и дивана.
Диваны же могут иметь не только внутренние ящики для хранения белья. В зависимости от дизайна они могут снабжаться массой полезных функций. Например, их нередко оборудуют мини-барами, столешницами, боковыми полками, стеллажами. Отдельные разновидности имеют столики, встроенные в подлокотники. Под такими столешницами могут располагаться мягкие пуфы.
Красивые примеры
Предлагаем 10 идей оформления комнат двухкомнатной квартиры площадью 42 кв. м, способных вдохновить на создание атмосферы уюта в собственном жилище.
- Обустройство обеденной зоны с акцентированием стены.
- Модульный диван как ключевой элемент гостевой зоны.
- Рациональное использование балкона как места отдыха.
- Оформление ванной комнаты в современном стиле.
- Рациональное размещение стиральной машины и шкафа с полками.

- Дизайн квартиры в современном стиле с перепланировкой.
- Примеры зонирования кухни на рабочую и обеденную зоны.
- Создание зоны комфорта в гостевом пространстве зала.
- Увеличение пространства зала за счет совмещения гостиной и балкона.
- Обустройство спальной комнаты в лучших традициях минимализма.
особенности ремонта в «хрущевке» без перепланировки, идеальные решения по планировке двухкомнатной квартиры со смежными комнатами
Владельцам небольших квартир приходится с особой тщательностью обдумывать дизайн интерьера.
Хочется, чтобы квартира была уютной и современной, с располагающей обстановкой. Материал данной статьи подскажет, какие идеи дизайна сегодня актуальны, как лучше спланировать и оформить комнаты и санузел в квартире площадью 42 кв. м.
Особенности планировки
Планировка большинства «двушек» старого образца не отличается особым удобством. Имея всего 42 кв. метра, сложно замахнуться на что-то масштабное. Типовой планировкой «хрущевок» является так называемая «книжка». В таких квартирах есть общая проходная и смежные комнаты. Это не самая лучшая планировка.
Улучшенной перспективой жилища считается планировка «трамвай». В этом случае комнаты тоже смежные, но они более удобны.
Кроме того, расположение комнат может быть симметричным («бабочка»). В этом случае кухня располагается между ними. По-другому такая планировка называется «распашонка».
Когда расположение стеновых перекрытий не самое удобное, может возникнуть вопрос о частичном сносе перегородок или совмещении, например, кухни или спальни с балконом путем удаления стены до подоконной части. В иных случаях занимаются перепланировкой, обыгрывая недостатки комнатной перспективы.
Планировка должна быть продуманной и максимально функциональной. Еще до начала ремонта двухкомнатной квартиры площадь планируют таким образом, чтобы хватало места для сна, отдыха, хранения вещей, а также санузла.
При этом зачастую приходится отталкиваться от расположения коммуникаций, дверных проемов, имеющихся выступов и ниш.
Евродвухкомнатная квартира площадью 42 кв. м создается и из «однушки». В этом случае прибегают к перепланировке, стараясь максимально рационально использовать пространство каждого помещения жилища. Подобное жилье может иметь планировку с лоджией и даже кладовкой. Санузел у него бывает совмещенным и раздельным.
Зонирование пространства
Чтобы дизайн двухкомнатной квартиры площадью 42 кв. м в «хрущевке» получился современным и эстетически привлекательным, необходимо правильно организовать пространство каждого помещения.
Идеальным решением станет разделение каждой комнаты на функциональные зоны.
Это позволит внести в интерьер ненавязчивую организацию и сделать квартиру более уютной даже без перепланировки.
Зонировать любое помещение можно посредством:
- цвета настенного, напольного и потолочного покрытия;
- выбора и размещения настенных и потолочных светильников;
- создания ограждений из имеющихся элементов меблировки;
- использования разного по цвету материала облицовки, мебели;
- создания разных по назначению функциональных островков.
Оформление
Отделка небольшой квартиры подразумевает учет нескольких основных критериев:
- цветовая гамма должна быть светлой, используемые тона – мягкими и благородными;
- светильники могут иметь разную форму, но небольшой размер и лаконичный дизайн;
- в интерьере допускается использовать контраст с использованием не более 4 оттенков;
- за основу целесообразнее выбрать минималистичные современные направления дизайна;
- мебель должна быть линейной, эргономичной и оптимально функциональной.

Важно использовать минимум аксессуаров, создавать эффект визуального простора и легкости.
В приоритете не слишком объемная мебель из фанеры, древесины и металла. Отделочные материалы не должны быть пестрыми, нежелателен крупный рисунок на стенах. Текстиль подбирают эстетически привлекательный и практичный.
Зал
В зале можно обустроить 2 зоны: гостевую и место отдыха. Место приема гостей обустраивают компактным диваном и чайным столиком. Мебель можно расположить у стены, напротив ТВ-зоны.
Чтобы комната не казалась маленькой, нужно выбрать светлую отделку стен, а также современные шторы (роликовые, плиссе, римские, классические на люверсах или кольцах). Материал занавесей может быть легким, воздушным. Приборы освещения здесь должны быть компактными, что создаст эффект увеличения комнаты.
Спальня
В спальне двухкомнатной квартиры можно обустроить 2 зоны: спальную и место туалетного столика. Вместо уходовой зоны в спальне можно обустраивать рабочий уголок. Кровать здесь располагают таким образом, чтобы оставалось место для свободного передвижения по комнате. Цветовое решение интерьера должно быть светлым, исключены темные тона и крупные принты на стенах. В узкой комнате мебель располагают линейным способом.
Чтобы визуально увеличить помещение, в дизайне используют зеркала.
Кухня
Несмотря на единство цветового решения всей квартиры, оттенок интерьера кухни может быть динамичным. Маленькое пространство обставляют мебелью с упором на функциональность. В приоритете банкетки, мягкие уголки со стульями или табуретками. Можно обустроить комнату узким диваном углового типа. Кухонная мебель должна иметь практичную влагостойкую обивку. Пространство делят на 2 зоны: готовки и столовую, обустраивая помещение с учетом правила рабочего треугольника.
Прихожая
Планировка прихожей обычно линейная. Размещение мебели вдоль стены экономит полезную площадь. Возле входа можно расположить узкую прихожую или вешалку с зеркалом.
Здесь же ставят пуф или банкетку, необходимую для более удобного обувания. Отделочные материалы стен здесь должны быть практичными и долговечными. В приоритете моющиеся обои или стеновые панели из пластика.
Санузел
К обустройству и планировке сантехнического узла нужно подходить основательно. Сантехнику покупают в едином стиле и цвете, подбирая примерно одинаковые по форме элементы меблировки. Для эффекта единства дизайна к сантехнике приобретают одинаковую фурнитуру. Расставляют каждый предмет исходя из соображений безопасности пользователей. Пространство делят на 3 зоны: мытья, мойки и туалет (если санузел совмещенный). Ванну стараются отгородить от остальных зон посредством частичных или полноценных ширм.
Выбор мебели
Мебель для небольшой квартиры имеет несколько характерных особенностей.
Она компактна, эргономична, функциональна. Если это диван, то обязательно с механизмом трансформации, позволяющий расположить на ночь припозднившихся гостей. Если банкетка, то с откидной крышкой и ящиком для хранения каких-либо необходимых в быту вещей. Если уголок, то мягкий, с ящиком, мягкими подлокотниками или встроенными полками.
Цветовое решение мебели должно быть родственным во всей квартире. При этом оттенки цвета могут отличаться степенью насыщенности. Форма, стиль и дизайн подбираются примерно одинаковыми. Это создаст эффект единства в оформлении интерьера.
Стиль элементов меблировки должен быть единым, что может проявляться в отделке и декоре.
В основной комплект мебели для обустройства всей квартиры стоит включить функциональный диван (линейного либо углового типа), уголок, журнальный столик, шкаф для одежды, рабочий и туалетный стол, кровать, прихожую, обеденный стол и стулья. Покупка тумб будет зависеть от функциональности шкафов и дивана.
Диваны же могут иметь не только внутренние ящики для хранения белья. В зависимости от дизайна они могут снабжаться массой полезных функций. Например, их нередко оборудуют мини-барами, столешницами, боковыми полками, стеллажами. Отдельные разновидности имеют столики, встроенные в подлокотники. Под такими столешницами могут располагаться мягкие пуфы.
Красивые примеры
Предлагаем 10 идей оформления комнат двухкомнатной квартиры площадью 42 кв. м, способных вдохновить на создание атмосферы уюта в собственном жилище.
- Обустройство обеденной зоны с акцентированием стены.
- Модульный диван как ключевой элемент гостевой зоны.
- Рациональное использование балкона как места отдыха.
- Оформление ванной комнаты в современном стиле.
- Рациональное размещение стиральной машины и шкафа с полками.

- Дизайн квартиры в современном стиле с перепланировкой.
- Примеры зонирования кухни на рабочую и обеденную зоны.
- Создание зоны комфорта в гостевом пространстве зала.
- Увеличение пространства зала за счет совмещения гостиной и балкона.
- Обустройство спальной комнаты в лучших традициях минимализма.
особенности ремонта в «хрущевке» без перепланировки, идеальные решения по планировке двухкомнатной квартиры со смежными комнатами
Владельцам небольших квартир приходится с особой тщательностью обдумывать дизайн интерьера.
Хочется, чтобы квартира была уютной и современной, с располагающей обстановкой. Материал данной статьи подскажет, какие идеи дизайна сегодня актуальны, как лучше спланировать и оформить комнаты и санузел в квартире площадью 42 кв. м.
Особенности планировки
Планировка большинства «двушек» старого образца не отличается особым удобством. Имея всего 42 кв. метра, сложно замахнуться на что-то масштабное. Типовой планировкой «хрущевок» является так называемая «книжка». В таких квартирах есть общая проходная и смежные комнаты. Это не самая лучшая планировка.
Улучшенной перспективой жилища считается планировка «трамвай». В этом случае комнаты тоже смежные, но они более удобны.
Кроме того, расположение комнат может быть симметричным («бабочка»). В этом случае кухня располагается между ними. По-другому такая планировка называется «распашонка».
Когда расположение стеновых перекрытий не самое удобное, может возникнуть вопрос о частичном сносе перегородок или совмещении, например, кухни или спальни с балконом путем удаления стены до подоконной части. В иных случаях занимаются перепланировкой, обыгрывая недостатки комнатной перспективы.
Планировка должна быть продуманной и максимально функциональной. Еще до начала ремонта двухкомнатной квартиры площадь планируют таким образом, чтобы хватало места для сна, отдыха, хранения вещей, а также санузла.
При этом зачастую приходится отталкиваться от расположения коммуникаций, дверных проемов, имеющихся выступов и ниш.
Евродвухкомнатная квартира площадью 42 кв. м создается и из «однушки». В этом случае прибегают к перепланировке, стараясь максимально рационально использовать пространство каждого помещения жилища. Подобное жилье может иметь планировку с лоджией и даже кладовкой. Санузел у него бывает совмещенным и раздельным.
Зонирование пространства
Чтобы дизайн двухкомнатной квартиры площадью 42 кв. м в «хрущевке» получился современным и эстетически привлекательным, необходимо правильно организовать пространство каждого помещения.
Идеальным решением станет разделение каждой комнаты на функциональные зоны.
Это позволит внести в интерьер ненавязчивую организацию и сделать квартиру более уютной даже без перепланировки.
Зонировать любое помещение можно посредством:
- цвета настенного, напольного и потолочного покрытия;
- выбора и размещения настенных и потолочных светильников;
- создания ограждений из имеющихся элементов меблировки;
- использования разного по цвету материала облицовки, мебели;
- создания разных по назначению функциональных островков.
Оформление
Отделка небольшой квартиры подразумевает учет нескольких основных критериев:
- цветовая гамма должна быть светлой, используемые тона – мягкими и благородными;
- светильники могут иметь разную форму, но небольшой размер и лаконичный дизайн;
- в интерьере допускается использовать контраст с использованием не более 4 оттенков;
- за основу целесообразнее выбрать минималистичные современные направления дизайна;
- мебель должна быть линейной, эргономичной и оптимально функциональной.

Важно использовать минимум аксессуаров, создавать эффект визуального простора и легкости.
В приоритете не слишком объемная мебель из фанеры, древесины и металла. Отделочные материалы не должны быть пестрыми, нежелателен крупный рисунок на стенах. Текстиль подбирают эстетически привлекательный и практичный.
Зал
В зале можно обустроить 2 зоны: гостевую и место отдыха. Место приема гостей обустраивают компактным диваном и чайным столиком. Мебель можно расположить у стены, напротив ТВ-зоны.
Чтобы комната не казалась маленькой, нужно выбрать светлую отделку стен, а также современные шторы (роликовые, плиссе, римские, классические на люверсах или кольцах). Материал занавесей может быть легким, воздушным. Приборы освещения здесь должны быть компактными, что создаст эффект увеличения комнаты.
Спальня
В спальне двухкомнатной квартиры можно обустроить 2 зоны: спальную и место туалетного столика. Вместо уходовой зоны в спальне можно обустраивать рабочий уголок. Кровать здесь располагают таким образом, чтобы оставалось место для свободного передвижения по комнате. Цветовое решение интерьера должно быть светлым, исключены темные тона и крупные принты на стенах. В узкой комнате мебель располагают линейным способом.
Чтобы визуально увеличить помещение, в дизайне используют зеркала.
Кухня
Несмотря на единство цветового решения всей квартиры, оттенок интерьера кухни может быть динамичным. Маленькое пространство обставляют мебелью с упором на функциональность. В приоритете банкетки, мягкие уголки со стульями или табуретками. Можно обустроить комнату узким диваном углового типа. Кухонная мебель должна иметь практичную влагостойкую обивку. Пространство делят на 2 зоны: готовки и столовую, обустраивая помещение с учетом правила рабочего треугольника.
Прихожая
Планировка прихожей обычно линейная. Размещение мебели вдоль стены экономит полезную площадь. Возле входа можно расположить узкую прихожую или вешалку с зеркалом.
Здесь же ставят пуф или банкетку, необходимую для более удобного обувания. Отделочные материалы стен здесь должны быть практичными и долговечными. В приоритете моющиеся обои или стеновые панели из пластика.
Санузел
К обустройству и планировке сантехнического узла нужно подходить основательно. Сантехнику покупают в едином стиле и цвете, подбирая примерно одинаковые по форме элементы меблировки. Для эффекта единства дизайна к сантехнике приобретают одинаковую фурнитуру. Расставляют каждый предмет исходя из соображений безопасности пользователей. Пространство делят на 3 зоны: мытья, мойки и туалет (если санузел совмещенный). Ванну стараются отгородить от остальных зон посредством частичных или полноценных ширм.
Выбор мебели
Мебель для небольшой квартиры имеет несколько характерных особенностей.
Она компактна, эргономична, функциональна. Если это диван, то обязательно с механизмом трансформации, позволяющий расположить на ночь припозднившихся гостей. Если банкетка, то с откидной крышкой и ящиком для хранения каких-либо необходимых в быту вещей. Если уголок, то мягкий, с ящиком, мягкими подлокотниками или встроенными полками.
Цветовое решение мебели должно быть родственным во всей квартире. При этом оттенки цвета могут отличаться степенью насыщенности. Форма, стиль и дизайн подбираются примерно одинаковыми. Это создаст эффект единства в оформлении интерьера.
Стиль элементов меблировки должен быть единым, что может проявляться в отделке и декоре.
В основной комплект мебели для обустройства всей квартиры стоит включить функциональный диван (линейного либо углового типа), уголок, журнальный столик, шкаф для одежды, рабочий и туалетный стол, кровать, прихожую, обеденный стол и стулья. Покупка тумб будет зависеть от функциональности шкафов и дивана.
Диваны же могут иметь не только внутренние ящики для хранения белья. В зависимости от дизайна они могут снабжаться массой полезных функций. Например, их нередко оборудуют мини-барами, столешницами, боковыми полками, стеллажами. Отдельные разновидности имеют столики, встроенные в подлокотники. Под такими столешницами могут располагаться мягкие пуфы.
Красивые примеры
Предлагаем 10 идей оформления комнат двухкомнатной квартиры площадью 42 кв. м, способных вдохновить на создание атмосферы уюта в собственном жилище.
- Обустройство обеденной зоны с акцентированием стены.
- Модульный диван как ключевой элемент гостевой зоны.
- Рациональное использование балкона как места отдыха.
- Оформление ванной комнаты в современном стиле.
- Рациональное размещение стиральной машины и шкафа с полками.

- Дизайн квартиры в современном стиле с перепланировкой.
- Примеры зонирования кухни на рабочую и обеденную зоны.
- Создание зоны комфорта в гостевом пространстве зала.
- Увеличение пространства зала за счет совмещения гостиной и балкона.
- Обустройство спальной комнаты в лучших традициях минимализма.
Дизайн двухкомнатной «хрущевки» — интересные идеи (124 фото): 2-х комнатные квартиры 44 м2 и 43 кв. м, кухня и зал, идеи оформления для комнаты
Ремонт «хрущевки» – настоящее испытание, особенно если из старой квартиры неудачной планировки хочется сделать современную и удобную.
Главный враг старых квартир – узкий коридор, маленькая кухня, неудачное расположение дверей, проходные комнаты и, конечно, небольшая квадратура. Но на сегодняшний день можно реализовать даже самый смелый и необычный проект, и для этого совсем не обязательно быть профессиональным дизайнером. Достаточно проанализировать особенности квартиры, изучить ранее реализованные проекты и составить дизайн-проект.
Особенности
Построенные в середине прошлого столетия дома до сих пор остаются единственным жильем для миллионов семей. И на сегодняшний день кирпичные и крупнопанельные дома до пяти этажей считаются наихудшим архитектурным решением. Зачастую самым простым способом усовершенствовать удручающую планировку квартиры является снос межкомнатных перегородок. При некоторых планировках возможно объединить кухню и комнаты, прихожую и комнату, ванну и туалет.
Это позволит расширить площадь квартиры, добавить несколько необходимых метров. Также в некоторых квартирах есть кладовая, которую можно объединить с жилой комнатой.
Размеры коридора обычно наводят тоску. Узкая и темная прихожая в редких случаях может вместить шкаф-купе, поэтому необходимо делать акцент на функциональности, по возможности избавиться от не несущих стен. Если санузел изначально раздельный, его стоит объединить. Тогда можно будет выделить место для стиральной машины и большой угловой ванны. Чтобы сэкономить пространство, можно отказаться от раковины или от ванны в пользу душевой кабины. Любая перестройка стен должна быть согласована со специалистом, независимо от того, в каком доме она проводится: крупнопанельном или кирпичном.
Особенности квартиры не дают возможности перенести кухню в другое место, но зато можно вынести обеденную зону в гостиную. Для этого можно снести перегородку между кухней и комнатой или сделать арочный проем.
Такой широкий проход визуально разделит пространство и создаст эффект увеличения площади. Вместо большого вместительного стола можно оставить место на кухне для барной стойки, за которой могут комфортно разместиться до 4 человек.
Размеры
На маленькой площади очень хочется обустроить красивую и комфортную для жизни квартиру. Современные дизайнерские идеи позволяют создать уютный интерьер, поэтому дизайн-проекты для квартир до 43 кв. м по-прежнему пользуется популярностью. Все типовые двухкомнатные «хрущевки» имеют схожую планировку и площадь:
- Общая площадь составляет 41-48 квадратных метров.
- Квартиры площадью до 41 кв. м имеют смежные комнаты.
- Высота потолка – 2,5-2,6 м. В некоторых сериях домов потолки достигают 2,7 м.
- Площадь кухни варьируется от 4,9 до 8 м2.

Планировка квартиры в 42 кв. м называется в народе «книжка». Она считается наиболее неудачной, потому что имеет небольшие комнаты, одна из которых проходная. Квартира площадью 44 кв. м имеет уже раздельные комнаты, но небольшая кухня доставляет определенные неудобства и требует кардинальных решений. В квартире метражом в 45 кв. м комнаты расположены симметрично, поэтому они получили в народе названия «распашонка» или «бабочка».
Комнаты
Вариантов обустройства двухкомнатной «хрущевки», на самом деле, не так уж много, но делать квартиру с неудачной планировкой и низкими потолками комфортной и удобной вполне реально. Для этого, в первую очередь, необходимо понять, какой вид ремонта стоит провести: капитальный с заменой всех инженерных и коммуникационных сетей и сносом перегородок или простой косметический ремонт без перепланировки.
Существует три распространенные планировки двухкомнатной «хрущевки»: «книжка», «трамвай» и «полуторка» с улучшенной планировкой. Самое маленькое помещение в любой квартире – это прихожая. Расширить ее площадь можно только за счет увеличения дверного проема. Так будет поступать больше естественного света, и прихожая визуально расширится. Если же прихожая длинная, но узкая, ее можно поделить на две части. Первая будет стандартной прихожей возле входной двери, а вторая станет переходом в комнату.
Пожалуй, самый интересный вариант можно получить только путем полной трансформации квартиры, при этом важно использовать эффективно каждый квадратный метр. Для этого можно снести межкомнатные перегородки и обустроить квартиру по типу «студии», сделав акцент на свободе и просторе. Такой способ увеличит жилую площадь и расширит пространство. Также можно отказаться от узкого проходного коридора и расширить санузел. Перед началом работ необходимо составить план будущей квартиры и согласовать перепланировку.
Самые распространенные варианты объединения зон:
- зал-кухня-столовая. Для объединения трех зон в одном помещении необходимо снести перегородки или оборудовать арочный дверной проем. На линии разделения комнаты и кухни или в комнате располагается обеденная зона с мягким диваном или барная стойка с высокими стульями.
- Спальня-гостиная. Распространенный вариант обустройства квартиры, если в семье есть ребенок, и одна комната отводится для детской. При таком способе зонирования необязательно сносить межкомнатные перегородки, можно использовать разные способы зонирования помещения.
- Кабинет-гостиная. Самый оптимальный способ отделить рабочую зону – приподнять ее на подиум.
Также можно использовать мобильные перегородки или стеллаж с открытыми полками. Однако следует помнить, что громоздкие перегородки способны визуально уменьшить пространство. - Кабинет-спальня. В таком случае, рабочий стол можно расположить поближе к окну, использовать гипсокартонную стену или стеллаж. Также при помощи освещения можно поделить комнату на две независимые функциональные зоны.
Зонирование
Главный враг маленьких квартир – хаос, беспорядок и нагромождение. При составлении плана «двушки» важно учитывать несколько основных моментов:
- у каждого члена семьи должна быть личная зона, и размер этой зоны, как правило, не играет особой роли.

- Ну кухне обязательно должна быть выделена вместительная и функциональная рабочая зона с плитой, посудомоечной машиной и раковиной. Если используется газовая плита, то объединять кухню с комнатой нельзя, но можно расширить дверной проем, использовать раздвижные двери. И в тоже время, категорически запрещается менять положение газовой плиты и закрывать доступ к ней.
- Вторая комната может выделена под спальню или детскую комнату. В ней можно разместить большую систему хранения, кровать, туалетный столик или рабочий стол.
- Если в комнате будет жить ребенок, то можно поставить кровать, рабочий стол и шкаф, при этом останется свободное пространство для игр. Если в комнате будут жить двое детей, то лучше выбрать функциональную трансформирующуюся мебель или двухъярусную кровать. Место у окна можно оборудовать под рабочий стол, чтобы для каждого ребенка была отдельная зона для учебы.

Способов зонировать пространство много. Самые распространенные и востребованные:
- использование разных способов отделки стен;
- дополнительные фальшстены из гипсокартона;
- мобильные перегородки и ширмы;
- шторы, занавески и шторы-нити;
- предметы мебели, шкафы, диваны;
- разные уровни пола и потолка.
Еще одна хитрость зонирования «хрущевки» – это большое светлое пространство. Если снести стены возможности нет, то можно отказаться от привычных дверей в пользу раздвижных. При помощи таких «номинальных» дверей можно создать единое пространство или скрыть от посторонних глаз отдельную зону.
Отделка
Мнение о том, что в интерьере небольших квартирах необходимо использовать исключительно светлые цвета, несколько преувеличено, ведь пастельные тона могут превратить квартиру в больничную палату.
На самом деле, можно сочетать яркие и насыщенные оттенки, просто делать это надо аккуратно и умеренно. Выбор цвета – безусловно, индивидуальное решение, но стоит помнить, что оттенки оказывают особое влияние на настроение человека:
- бежевый, светло-серый, кремовый, бледно-желтый и другие пастельные оттенки являются самыми популярными во всех современных стилях. Разнообразить такой интерьер можно при помощи черного, коричневого или любых ярких цветов.
- Вся палитра зеленого отлично сочетается с белым и коричневым, отлично подходит для эко стиля и при этом создает особое расслабленное настроение.
- Яркие и насыщенные цвета можно использовать в интерьере квартиры даже при оформлении стен, но важно разбавлять краски светлыми оттенками, которые могут присутствовать в мебели, занавесках и текстиле.

- Синий и голубой в интерьере отлично сочетаются с белым и серым. Также можно добавить солнечных красок, разбавив холодные оттенки желтым или зеленым.
Важно уметь сочетать цвета и оттенки, не бояться смелых решений и объединить отделку пола, стен и потолка в одном направлении. Тогда даже старая 2-х комнатная квартира может стать уютным и современным жильем.
Полы
Варианты отделки пола зависят от предпочтений и финансового состояния владельца квартиры. Можно выбрать стандартный линолеум, ламинат, плитку или ковровое покрытие, но все же любое покрытие лучше делать в светлых тонах или в максимально приближенной к ним цветовой палитре. Это могут быть серые, бежевые, белые оттенки или рисунки, имитирующие натуральное светлое дерево.
Ламинат и паркетную доску лучше укладывать вдоль длинной стены.
Проблема двухкомнатных «хрущевок» состоит в том, что могут возникнуть трудности при ремонте пола и сохранении единого рисунка, потому что комнаты могут находиться по разным сторонам здания, иметь разную форму. Поэтому лучше выбрать доски с неоднородным рисунком, который нет необходимости подбирать. Ковролин редко используется во всей квартире из-за своей непрактичности, но это отличный способ утеплить холодную комнату.
Потолки
Самый простой способ отделки потолка в малогабаритной квартире – использовать натяжной вариант. Он скроет все изъяны, неровности и трещины. Также можно использовать многоуровневые потолки с дополнительным светодиодным освещением. Дополнительное освещение по периметру потолка визуально увеличит длину комнаты.
Цвет потолка обязательно должен быть приближен к белому. Темные оттенки психологически будут давить, визуально уменьшат высоту потолка. Также отлично смотрится многоуровневый потолок с точечными встроенными светильниками.
Яркое освещение и сложные конструкции визуально «приподнимут» потолок и расширят пространство.
Стены
Самый распространенный способ отделки квартиры – выравнивание стен при помощи шпаклевки и оклеивания обоями. Несмотря на кажущуюся простоту работы, на самом деле, процесс очень затруднительный, потому что стены «хрущевки» не считаются ровными, а поклеить обои встык при этом получится не всегда. Местами разница между полотнами может достигать 2 см, поэтому потратить время и силы на идеальное выравнивание стен все же стоит. Существует несколько способов отделки стен:
- обои остаются самым распространенным вариантом. Можно использовать дорогие полотна с шелкографией. Лучше отдавать предпочтение обоям с вертикальными небольшими узорами и рисунками. Они помогут достичь эффекта высокого потолка.

- Отлично в небольшом помещении смотрятся фотообои с перспективой: городские пейзажи или природный ландшафт украсят любую комнату и создадут иллюзию присутствия.
- Отличная альтернатива – жидкие обои. Они легко наносятся и скрывают все изъяны неровных стен. Текстура позволяет создавать бесшовную поверхность, разнообразить интерьер необычными узорами.
Мебель
Разместить всю необходимую мебель в «хрущевке» – уже удача, но если вы хотите создать уникальный современный интерьер, то нужно выбирать стильную и компактную мебель. Все габаритные предметы (шкаф, диван, комод) стоит убрать в самый темный угол подальше от окна. Использовать лучше раскладные столы, раздвижные диваны, многофункциональные комоды.
В качестве системы хранения стоит выбирать встроенную мебель с глянцевыми, светлыми или стеклянными дверцами, поскольку темные цвета сделают мебель более громоздкой и тяжелой. Мягкая мебель может быть яркого и насыщенного цвета.
Кровать в спальню лучше выбрать с внутренними ящиками для хранения вещей и текстиля. Как будет осуществляться доступ – каждый решает сам. Существует два варианта: выдвижные ящики или подъем спального места. Каждый из них имеет плюсы и минусы. В выдвижных ящиках помещается меньше вещей, но доступ к ним облегчен, возможен в любое время. С подъемным механизмом дела обстоят абсолютно противоположно: места для хранения в разы больше, но доступ к ним может быть ограничен, если в это время на кровати спит человек. Цены на обе модели отличаются.
Также лучше выбирать кровати с мягким изголовьем, они значительно облегчат быт, сделают отдых более комфортным и расслабляющим. Не стоит экономить на покупке кровати.
Она должна быть большой и удобной. Даже если придется пожертвовать прикроватными тумбочками, все же стоит выбирать самую большую модель, которую может вместить спальня.
Декор
В маленькой квартире должно быть минимум декора. Открытые полки стеллажа лучше оставлять полупустыми, так как это создаст более легкую атмосферу. Не стоит использовать большое количество мелкого декора. Он будет дробить помещение на части и создавать ощущение захламленности и бардака.
Все же при ремонте двухкомнатной «хрущевки» стоит отдавать предпочтение простым формам, многоуровневому освещению, делать акцент на пространстве, потому что смелые дизайнерские идеи не всегда требуют большого количества декоративных элементов в интерьере. Главный акцент в гостиной лучше сделать на мягкой мебели и текстиле. Из-за дефицита декоративных элементов обивка мебели, напольное покрытие и занавески станут главной составляющей квартиры, поэтому подходите более тщательно к выбору ковра, дивана, штор и других деталей, таких как картины, лампы и вазы.
Стили
Обе комнаты и кухня должны отвечать одному стилю, выдерживаться в одной цветовой гамме и соответствовать временной эпохе. Сочетание разных стилей в маленькой «хрущевке» будет смотреться неуместно и даже нелепо. Ценителям свободы и открытого пространства стоит обратить внимание на современные стили оформления квартиры, они идеально подходят для квартир-студий. При этом акцент ставится на функциональности и свободе пространства.
- Для небольшой квартиры самый подходящий стиль – минимализм. Светлые оттенки, легкие занавески и минимум декора – все это создает эффект расширения пространства и позитивно влияет на состояние человека.
- Скандинавский стиль сочетает в себе особенности минимализма и игру цветов.
В данном стиле также преобладают светлые оттенки в интерьере, но допускается дополнительный декор в виде картин, декоративных предметов и цветов. При этом главный акцент делается на функциональности и комфорте. - Высокотехнологичный хай-тек отлично подойдет для современных и активных молодых людей. По сути, в интерьере воплощается эра высоких технологий. К тому же, такой стиль отлично подойдет и для оформления комнаты подростка. Предпочтение отдается светлым оттенкам и металлическому глянцевому блеску. Исключены объемные люстры и необычные декоративные элементы, но допускается использование картин, постеров и фотографий в тонких металлических рамках. Освещение должно быть хорошо продумано, предпочтение отдается простым геометрическим формам светильников.
- Стиль прованс пришел к нам из южной провинции Франции. Отличительные особенности – флористические мотивы, пастельные и природные оттенки: бежевый, бирюза, оливковый, голубой, зеленый, розовый, лавандовый, желтый и подобные, при этом интерьер не должен быть ярким и насыщенным.
Основной светлый цвет разбавляется естественной природной палитрой. Мебель может быть состаренной, с облупленной краской или сколами на дереве. Дополнить интерьер можно уникальными предметами: сундуком или старым комодом. Шторы и занавески должны быть легкими и полупрозрачными, допускается средняя длина до подоконника. В качестве декора приветствуется большое количество рюшей, кружева, скатертей и керамических статуэток. - В маленькой тесной «хрущевке» можно использовать разные стили, но ни в коем случае нельзя оформлять интерьер в шикарно и праздно украшенном барокко.
Независимо от того, какой стиль интерьера вы выберете, главное, чтобы пространство было эстетичным, функциональным и практичным.
Советы профессионалов
Дизайнеры советуют сочетать в интерьере не более трех цветов.
Один из них обязательно должен быть нейтральным и спокойным, а что касается остальных, то они могут быть смелыми и насыщенными, главное – не слишком кричащими, не перегружающими комнату. Дополнительные цвета уместно использовать в качестве акцентов. Это могут быть яркие картины, текстиль, шторы, обивка мебели или необычная авторская ваза. Главное, чтобы второй цвет был дополнительным, а третий – связующим звеном между первыми двумя.
Определитесь заранее, где будет установлен телевизор. Лучше выбирать плоский экран, и устанавливать его на стену при помощи поворотного кронштейна. Следует сразу позаботиться о том, чтобы провода были спрятаны.
Окно в «хрущевке» обычно имеет небольшие размеры, поэтому лучшим вариантов штор будут легкие полупрозрачные занавески. Таким образом, комната будет наполняться дневным светом и воздухом.
Стоит отказаться от плотных портьер и штор с ламбрекенами, поскольку они могут смотреться гармонично при составлении дизайн-проекта, но на практике сделают обстановку тяжелой, сжатой и пыльной.
Удачный дизайн «хрущевки» не может обойтись без качественного освещения. Главное, чтобы в квартире не оставалось темных углов. В зависимости от стиля в качестве основного потолочного освещения лучше выбирать встроенные светильники по всему периметру потолка, можно сочетать их с потолочной люстрой. Для индивидуального освещения стоит использовать локальные светильники на полу и стенах. Это могут быть всевозможные торшеры, бра и настольные лампы. Грамотно продуманное освещение поможет расставить акценты в квартире, выделить важные зоны и скрыть недостатки.
Варианты в интерьере
Большое зеркало в красивой раме способно преобразить интерьер «хрущевки» до неузнаваемости.
Для зонирования небольшой комнаты отлично подходят шторы-нити.
Данный вариант относится к эконом-классу. Они отлично пропускают воздух и свет, занимают немного места, и в любой момент их можно убрать, сделав помещение еще больше.
Выигрышно смотрится интерьер комнаты, когда цвета мебели, стен и занавесок совпадают.
При работе над обустройством кухни не стоит бояться смелых решений. Гарнитур с округлой формой сочетает в себе удобство, функциональность и стиль. При этом он располагается на площади 8 квадратных метров.
Сочетание бежевого, коричневого и насыщенного синего смотрится гармонично и привлекательной в интерьере кухни-гостиной.
Неплохой способ – расширить площадь кухни за счет прихожей.
Захватывающие фотообои смотрятся невероятно даже в маленькой комнате, создавая потрясающий эффект присутствия.
О том, как сделать перепланировку двухкомнатной «хрущевки», увидите в следующем видео.
Дизайн двухкомнатной «хрущевки» — интересные идеи (124 фото): 2-х комнатные квартиры 44 м2 и 43 кв. м, кухня и зал, идеи оформления для комнаты
Ремонт «хрущевки» – настоящее испытание, особенно если из старой квартиры неудачной планировки хочется сделать современную и удобную.
Главный враг старых квартир – узкий коридор, маленькая кухня, неудачное расположение дверей, проходные комнаты и, конечно, небольшая квадратура. Но на сегодняшний день можно реализовать даже самый смелый и необычный проект, и для этого совсем не обязательно быть профессиональным дизайнером. Достаточно проанализировать особенности квартиры, изучить ранее реализованные проекты и составить дизайн-проект.
Особенности
Построенные в середине прошлого столетия дома до сих пор остаются единственным жильем для миллионов семей. И на сегодняшний день кирпичные и крупнопанельные дома до пяти этажей считаются наихудшим архитектурным решением. Зачастую самым простым способом усовершенствовать удручающую планировку квартиры является снос межкомнатных перегородок. При некоторых планировках возможно объединить кухню и комнаты, прихожую и комнату, ванну и туалет.
Это позволит расширить площадь квартиры, добавить несколько необходимых метров. Также в некоторых квартирах есть кладовая, которую можно объединить с жилой комнатой.
Размеры коридора обычно наводят тоску. Узкая и темная прихожая в редких случаях может вместить шкаф-купе, поэтому необходимо делать акцент на функциональности, по возможности избавиться от не несущих стен. Если санузел изначально раздельный, его стоит объединить. Тогда можно будет выделить место для стиральной машины и большой угловой ванны. Чтобы сэкономить пространство, можно отказаться от раковины или от ванны в пользу душевой кабины. Любая перестройка стен должна быть согласована со специалистом, независимо от того, в каком доме она проводится: крупнопанельном или кирпичном.
Особенности квартиры не дают возможности перенести кухню в другое место, но зато можно вынести обеденную зону в гостиную. Для этого можно снести перегородку между кухней и комнатой или сделать арочный проем.
Такой широкий проход визуально разделит пространство и создаст эффект увеличения площади. Вместо большого вместительного стола можно оставить место на кухне для барной стойки, за которой могут комфортно разместиться до 4 человек.
Размеры
На маленькой площади очень хочется обустроить красивую и комфортную для жизни квартиру. Современные дизайнерские идеи позволяют создать уютный интерьер, поэтому дизайн-проекты для квартир до 43 кв. м по-прежнему пользуется популярностью. Все типовые двухкомнатные «хрущевки» имеют схожую планировку и площадь:
- Общая площадь составляет 41-48 квадратных метров.
- Квартиры площадью до 41 кв. м имеют смежные комнаты.
- Высота потолка – 2,5-2,6 м. В некоторых сериях домов потолки достигают 2,7 м.
- Площадь кухни варьируется от 4,9 до 8 м2.

Планировка квартиры в 42 кв. м называется в народе «книжка». Она считается наиболее неудачной, потому что имеет небольшие комнаты, одна из которых проходная. Квартира площадью 44 кв. м имеет уже раздельные комнаты, но небольшая кухня доставляет определенные неудобства и требует кардинальных решений. В квартире метражом в 45 кв. м комнаты расположены симметрично, поэтому они получили в народе названия «распашонка» или «бабочка».
Комнаты
Вариантов обустройства двухкомнатной «хрущевки», на самом деле, не так уж много, но делать квартиру с неудачной планировкой и низкими потолками комфортной и удобной вполне реально. Для этого, в первую очередь, необходимо понять, какой вид ремонта стоит провести: капитальный с заменой всех инженерных и коммуникационных сетей и сносом перегородок или простой косметический ремонт без перепланировки.
Существует три распространенные планировки двухкомнатной «хрущевки»: «книжка», «трамвай» и «полуторка» с улучшенной планировкой. Самое маленькое помещение в любой квартире – это прихожая. Расширить ее площадь можно только за счет увеличения дверного проема. Так будет поступать больше естественного света, и прихожая визуально расширится. Если же прихожая длинная, но узкая, ее можно поделить на две части. Первая будет стандартной прихожей возле входной двери, а вторая станет переходом в комнату.
Пожалуй, самый интересный вариант можно получить только путем полной трансформации квартиры, при этом важно использовать эффективно каждый квадратный метр. Для этого можно снести межкомнатные перегородки и обустроить квартиру по типу «студии», сделав акцент на свободе и просторе. Такой способ увеличит жилую площадь и расширит пространство. Также можно отказаться от узкого проходного коридора и расширить санузел. Перед началом работ необходимо составить план будущей квартиры и согласовать перепланировку.
Самые распространенные варианты объединения зон:
- зал-кухня-столовая. Для объединения трех зон в одном помещении необходимо снести перегородки или оборудовать арочный дверной проем. На линии разделения комнаты и кухни или в комнате располагается обеденная зона с мягким диваном или барная стойка с высокими стульями.
- Спальня-гостиная. Распространенный вариант обустройства квартиры, если в семье есть ребенок, и одна комната отводится для детской. При таком способе зонирования необязательно сносить межкомнатные перегородки, можно использовать разные способы зонирования помещения.
- Кабинет-гостиная. Самый оптимальный способ отделить рабочую зону – приподнять ее на подиум.
Также можно использовать мобильные перегородки или стеллаж с открытыми полками. Однако следует помнить, что громоздкие перегородки способны визуально уменьшить пространство. - Кабинет-спальня. В таком случае, рабочий стол можно расположить поближе к окну, использовать гипсокартонную стену или стеллаж. Также при помощи освещения можно поделить комнату на две независимые функциональные зоны.
Зонирование
Главный враг маленьких квартир – хаос, беспорядок и нагромождение. При составлении плана «двушки» важно учитывать несколько основных моментов:
- у каждого члена семьи должна быть личная зона, и размер этой зоны, как правило, не играет особой роли.

- Ну кухне обязательно должна быть выделена вместительная и функциональная рабочая зона с плитой, посудомоечной машиной и раковиной. Если используется газовая плита, то объединять кухню с комнатой нельзя, но можно расширить дверной проем, использовать раздвижные двери. И в тоже время, категорически запрещается менять положение газовой плиты и закрывать доступ к ней.
- Вторая комната может выделена под спальню или детскую комнату. В ней можно разместить большую систему хранения, кровать, туалетный столик или рабочий стол.
- Если в комнате будет жить ребенок, то можно поставить кровать, рабочий стол и шкаф, при этом останется свободное пространство для игр. Если в комнате будут жить двое детей, то лучше выбрать функциональную трансформирующуюся мебель или двухъярусную кровать. Место у окна можно оборудовать под рабочий стол, чтобы для каждого ребенка была отдельная зона для учебы.

Способов зонировать пространство много. Самые распространенные и востребованные:
- использование разных способов отделки стен;
- дополнительные фальшстены из гипсокартона;
- мобильные перегородки и ширмы;
- шторы, занавески и шторы-нити;
- предметы мебели, шкафы, диваны;
- разные уровни пола и потолка.
Еще одна хитрость зонирования «хрущевки» – это большое светлое пространство. Если снести стены возможности нет, то можно отказаться от привычных дверей в пользу раздвижных. При помощи таких «номинальных» дверей можно создать единое пространство или скрыть от посторонних глаз отдельную зону.
Отделка
Мнение о том, что в интерьере небольших квартирах необходимо использовать исключительно светлые цвета, несколько преувеличено, ведь пастельные тона могут превратить квартиру в больничную палату.
На самом деле, можно сочетать яркие и насыщенные оттенки, просто делать это надо аккуратно и умеренно. Выбор цвета – безусловно, индивидуальное решение, но стоит помнить, что оттенки оказывают особое влияние на настроение человека:
- бежевый, светло-серый, кремовый, бледно-желтый и другие пастельные оттенки являются самыми популярными во всех современных стилях. Разнообразить такой интерьер можно при помощи черного, коричневого или любых ярких цветов.
- Вся палитра зеленого отлично сочетается с белым и коричневым, отлично подходит для эко стиля и при этом создает особое расслабленное настроение.
- Яркие и насыщенные цвета можно использовать в интерьере квартиры даже при оформлении стен, но важно разбавлять краски светлыми оттенками, которые могут присутствовать в мебели, занавесках и текстиле.

- Синий и голубой в интерьере отлично сочетаются с белым и серым. Также можно добавить солнечных красок, разбавив холодные оттенки желтым или зеленым.
Важно уметь сочетать цвета и оттенки, не бояться смелых решений и объединить отделку пола, стен и потолка в одном направлении. Тогда даже старая 2-х комнатная квартира может стать уютным и современным жильем.
Полы
Варианты отделки пола зависят от предпочтений и финансового состояния владельца квартиры. Можно выбрать стандартный линолеум, ламинат, плитку или ковровое покрытие, но все же любое покрытие лучше делать в светлых тонах или в максимально приближенной к ним цветовой палитре. Это могут быть серые, бежевые, белые оттенки или рисунки, имитирующие натуральное светлое дерево.
Ламинат и паркетную доску лучше укладывать вдоль длинной стены.
Проблема двухкомнатных «хрущевок» состоит в том, что могут возникнуть трудности при ремонте пола и сохранении единого рисунка, потому что комнаты могут находиться по разным сторонам здания, иметь разную форму. Поэтому лучше выбрать доски с неоднородным рисунком, который нет необходимости подбирать. Ковролин редко используется во всей квартире из-за своей непрактичности, но это отличный способ утеплить холодную комнату.
Потолки
Самый простой способ отделки потолка в малогабаритной квартире – использовать натяжной вариант. Он скроет все изъяны, неровности и трещины. Также можно использовать многоуровневые потолки с дополнительным светодиодным освещением. Дополнительное освещение по периметру потолка визуально увеличит длину комнаты.
Цвет потолка обязательно должен быть приближен к белому. Темные оттенки психологически будут давить, визуально уменьшат высоту потолка. Также отлично смотрится многоуровневый потолок с точечными встроенными светильниками.
Яркое освещение и сложные конструкции визуально «приподнимут» потолок и расширят пространство.
Стены
Самый распространенный способ отделки квартиры – выравнивание стен при помощи шпаклевки и оклеивания обоями. Несмотря на кажущуюся простоту работы, на самом деле, процесс очень затруднительный, потому что стены «хрущевки» не считаются ровными, а поклеить обои встык при этом получится не всегда. Местами разница между полотнами может достигать 2 см, поэтому потратить время и силы на идеальное выравнивание стен все же стоит. Существует несколько способов отделки стен:
- обои остаются самым распространенным вариантом. Можно использовать дорогие полотна с шелкографией. Лучше отдавать предпочтение обоям с вертикальными небольшими узорами и рисунками. Они помогут достичь эффекта высокого потолка.

- Отлично в небольшом помещении смотрятся фотообои с перспективой: городские пейзажи или природный ландшафт украсят любую комнату и создадут иллюзию присутствия.
- Отличная альтернатива – жидкие обои. Они легко наносятся и скрывают все изъяны неровных стен. Текстура позволяет создавать бесшовную поверхность, разнообразить интерьер необычными узорами.
Мебель
Разместить всю необходимую мебель в «хрущевке» – уже удача, но если вы хотите создать уникальный современный интерьер, то нужно выбирать стильную и компактную мебель. Все габаритные предметы (шкаф, диван, комод) стоит убрать в самый темный угол подальше от окна. Использовать лучше раскладные столы, раздвижные диваны, многофункциональные комоды.
В качестве системы хранения стоит выбирать встроенную мебель с глянцевыми, светлыми или стеклянными дверцами, поскольку темные цвета сделают мебель более громоздкой и тяжелой. Мягкая мебель может быть яркого и насыщенного цвета.
Кровать в спальню лучше выбрать с внутренними ящиками для хранения вещей и текстиля. Как будет осуществляться доступ – каждый решает сам. Существует два варианта: выдвижные ящики или подъем спального места. Каждый из них имеет плюсы и минусы. В выдвижных ящиках помещается меньше вещей, но доступ к ним облегчен, возможен в любое время. С подъемным механизмом дела обстоят абсолютно противоположно: места для хранения в разы больше, но доступ к ним может быть ограничен, если в это время на кровати спит человек. Цены на обе модели отличаются.
Также лучше выбирать кровати с мягким изголовьем, они значительно облегчат быт, сделают отдых более комфортным и расслабляющим. Не стоит экономить на покупке кровати.
Она должна быть большой и удобной. Даже если придется пожертвовать прикроватными тумбочками, все же стоит выбирать самую большую модель, которую может вместить спальня.
Декор
В маленькой квартире должно быть минимум декора. Открытые полки стеллажа лучше оставлять полупустыми, так как это создаст более легкую атмосферу. Не стоит использовать большое количество мелкого декора. Он будет дробить помещение на части и создавать ощущение захламленности и бардака.
Все же при ремонте двухкомнатной «хрущевки» стоит отдавать предпочтение простым формам, многоуровневому освещению, делать акцент на пространстве, потому что смелые дизайнерские идеи не всегда требуют большого количества декоративных элементов в интерьере. Главный акцент в гостиной лучше сделать на мягкой мебели и текстиле. Из-за дефицита декоративных элементов обивка мебели, напольное покрытие и занавески станут главной составляющей квартиры, поэтому подходите более тщательно к выбору ковра, дивана, штор и других деталей, таких как картины, лампы и вазы.
Стили
Обе комнаты и кухня должны отвечать одному стилю, выдерживаться в одной цветовой гамме и соответствовать временной эпохе. Сочетание разных стилей в маленькой «хрущевке» будет смотреться неуместно и даже нелепо. Ценителям свободы и открытого пространства стоит обратить внимание на современные стили оформления квартиры, они идеально подходят для квартир-студий. При этом акцент ставится на функциональности и свободе пространства.
- Для небольшой квартиры самый подходящий стиль – минимализм. Светлые оттенки, легкие занавески и минимум декора – все это создает эффект расширения пространства и позитивно влияет на состояние человека.
- Скандинавский стиль сочетает в себе особенности минимализма и игру цветов.
В данном стиле также преобладают светлые оттенки в интерьере, но допускается дополнительный декор в виде картин, декоративных предметов и цветов. При этом главный акцент делается на функциональности и комфорте. - Высокотехнологичный хай-тек отлично подойдет для современных и активных молодых людей. По сути, в интерьере воплощается эра высоких технологий. К тому же, такой стиль отлично подойдет и для оформления комнаты подростка. Предпочтение отдается светлым оттенкам и металлическому глянцевому блеску. Исключены объемные люстры и необычные декоративные элементы, но допускается использование картин, постеров и фотографий в тонких металлических рамках. Освещение должно быть хорошо продумано, предпочтение отдается простым геометрическим формам светильников.
- Стиль прованс пришел к нам из южной провинции Франции. Отличительные особенности – флористические мотивы, пастельные и природные оттенки: бежевый, бирюза, оливковый, голубой, зеленый, розовый, лавандовый, желтый и подобные, при этом интерьер не должен быть ярким и насыщенным.
Основной светлый цвет разбавляется естественной природной палитрой. Мебель может быть состаренной, с облупленной краской или сколами на дереве. Дополнить интерьер можно уникальными предметами: сундуком или старым комодом. Шторы и занавески должны быть легкими и полупрозрачными, допускается средняя длина до подоконника. В качестве декора приветствуется большое количество рюшей, кружева, скатертей и керамических статуэток. - В маленькой тесной «хрущевке» можно использовать разные стили, но ни в коем случае нельзя оформлять интерьер в шикарно и праздно украшенном барокко.
Независимо от того, какой стиль интерьера вы выберете, главное, чтобы пространство было эстетичным, функциональным и практичным.
Советы профессионалов
Дизайнеры советуют сочетать в интерьере не более трех цветов.
Один из них обязательно должен быть нейтральным и спокойным, а что касается остальных, то они могут быть смелыми и насыщенными, главное – не слишком кричащими, не перегружающими комнату. Дополнительные цвета уместно использовать в качестве акцентов. Это могут быть яркие картины, текстиль, шторы, обивка мебели или необычная авторская ваза. Главное, чтобы второй цвет был дополнительным, а третий – связующим звеном между первыми двумя.
Определитесь заранее, где будет установлен телевизор. Лучше выбирать плоский экран, и устанавливать его на стену при помощи поворотного кронштейна. Следует сразу позаботиться о том, чтобы провода были спрятаны.
Окно в «хрущевке» обычно имеет небольшие размеры, поэтому лучшим вариантов штор будут легкие полупрозрачные занавески. Таким образом, комната будет наполняться дневным светом и воздухом.
Стоит отказаться от плотных портьер и штор с ламбрекенами, поскольку они могут смотреться гармонично при составлении дизайн-проекта, но на практике сделают обстановку тяжелой, сжатой и пыльной.
Удачный дизайн «хрущевки» не может обойтись без качественного освещения. Главное, чтобы в квартире не оставалось темных углов. В зависимости от стиля в качестве основного потолочного освещения лучше выбирать встроенные светильники по всему периметру потолка, можно сочетать их с потолочной люстрой. Для индивидуального освещения стоит использовать локальные светильники на полу и стенах. Это могут быть всевозможные торшеры, бра и настольные лампы. Грамотно продуманное освещение поможет расставить акценты в квартире, выделить важные зоны и скрыть недостатки.
Варианты в интерьере
Большое зеркало в красивой раме способно преобразить интерьер «хрущевки» до неузнаваемости.
Для зонирования небольшой комнаты отлично подходят шторы-нити.
Данный вариант относится к эконом-классу. Они отлично пропускают воздух и свет, занимают немного места, и в любой момент их можно убрать, сделав помещение еще больше.
Выигрышно смотрится интерьер комнаты, когда цвета мебели, стен и занавесок совпадают.
При работе над обустройством кухни не стоит бояться смелых решений. Гарнитур с округлой формой сочетает в себе удобство, функциональность и стиль. При этом он располагается на площади 8 квадратных метров.
Сочетание бежевого, коричневого и насыщенного синего смотрится гармонично и привлекательной в интерьере кухни-гостиной.
Неплохой способ – расширить площадь кухни за счет прихожей.
Захватывающие фотообои смотрятся невероятно даже в маленькой комнате, создавая потрясающий эффект присутствия.
О том, как сделать перепланировку двухкомнатной «хрущевки», увидите в следующем видео.
Дизайн двухкомнатной «хрущевки» — интересные идеи (124 фото): 2-х комнатные квартиры 44 м2 и 43 кв. м, кухня и зал, идеи оформления для комнаты
Ремонт «хрущевки» – настоящее испытание, особенно если из старой квартиры неудачной планировки хочется сделать современную и удобную.
Главный враг старых квартир – узкий коридор, маленькая кухня, неудачное расположение дверей, проходные комнаты и, конечно, небольшая квадратура. Но на сегодняшний день можно реализовать даже самый смелый и необычный проект, и для этого совсем не обязательно быть профессиональным дизайнером. Достаточно проанализировать особенности квартиры, изучить ранее реализованные проекты и составить дизайн-проект.
Особенности
Построенные в середине прошлого столетия дома до сих пор остаются единственным жильем для миллионов семей. И на сегодняшний день кирпичные и крупнопанельные дома до пяти этажей считаются наихудшим архитектурным решением. Зачастую самым простым способом усовершенствовать удручающую планировку квартиры является снос межкомнатных перегородок. При некоторых планировках возможно объединить кухню и комнаты, прихожую и комнату, ванну и туалет.
Это позволит расширить площадь квартиры, добавить несколько необходимых метров. Также в некоторых квартирах есть кладовая, которую можно объединить с жилой комнатой.
Размеры коридора обычно наводят тоску. Узкая и темная прихожая в редких случаях может вместить шкаф-купе, поэтому необходимо делать акцент на функциональности, по возможности избавиться от не несущих стен. Если санузел изначально раздельный, его стоит объединить. Тогда можно будет выделить место для стиральной машины и большой угловой ванны. Чтобы сэкономить пространство, можно отказаться от раковины или от ванны в пользу душевой кабины. Любая перестройка стен должна быть согласована со специалистом, независимо от того, в каком доме она проводится: крупнопанельном или кирпичном.
Особенности квартиры не дают возможности перенести кухню в другое место, но зато можно вынести обеденную зону в гостиную. Для этого можно снести перегородку между кухней и комнатой или сделать арочный проем.
Такой широкий проход визуально разделит пространство и создаст эффект увеличения площади. Вместо большого вместительного стола можно оставить место на кухне для барной стойки, за которой могут комфортно разместиться до 4 человек.
Размеры
На маленькой площади очень хочется обустроить красивую и комфортную для жизни квартиру. Современные дизайнерские идеи позволяют создать уютный интерьер, поэтому дизайн-проекты для квартир до 43 кв. м по-прежнему пользуется популярностью. Все типовые двухкомнатные «хрущевки» имеют схожую планировку и площадь:
- Общая площадь составляет 41-48 квадратных метров.
- Квартиры площадью до 41 кв. м имеют смежные комнаты.
- Высота потолка – 2,5-2,6 м. В некоторых сериях домов потолки достигают 2,7 м.
- Площадь кухни варьируется от 4,9 до 8 м2.

Планировка квартиры в 42 кв. м называется в народе «книжка». Она считается наиболее неудачной, потому что имеет небольшие комнаты, одна из которых проходная. Квартира площадью 44 кв. м имеет уже раздельные комнаты, но небольшая кухня доставляет определенные неудобства и требует кардинальных решений. В квартире метражом в 45 кв. м комнаты расположены симметрично, поэтому они получили в народе названия «распашонка» или «бабочка».
Комнаты
Вариантов обустройства двухкомнатной «хрущевки», на самом деле, не так уж много, но делать квартиру с неудачной планировкой и низкими потолками комфортной и удобной вполне реально. Для этого, в первую очередь, необходимо понять, какой вид ремонта стоит провести: капитальный с заменой всех инженерных и коммуникационных сетей и сносом перегородок или простой косметический ремонт без перепланировки.
Существует три распространенные планировки двухкомнатной «хрущевки»: «книжка», «трамвай» и «полуторка» с улучшенной планировкой. Самое маленькое помещение в любой квартире – это прихожая. Расширить ее площадь можно только за счет увеличения дверного проема. Так будет поступать больше естественного света, и прихожая визуально расширится. Если же прихожая длинная, но узкая, ее можно поделить на две части. Первая будет стандартной прихожей возле входной двери, а вторая станет переходом в комнату.
Пожалуй, самый интересный вариант можно получить только путем полной трансформации квартиры, при этом важно использовать эффективно каждый квадратный метр. Для этого можно снести межкомнатные перегородки и обустроить квартиру по типу «студии», сделав акцент на свободе и просторе. Такой способ увеличит жилую площадь и расширит пространство. Также можно отказаться от узкого проходного коридора и расширить санузел. Перед началом работ необходимо составить план будущей квартиры и согласовать перепланировку.
Самые распространенные варианты объединения зон:
- зал-кухня-столовая. Для объединения трех зон в одном помещении необходимо снести перегородки или оборудовать арочный дверной проем. На линии разделения комнаты и кухни или в комнате располагается обеденная зона с мягким диваном или барная стойка с высокими стульями.
- Спальня-гостиная. Распространенный вариант обустройства квартиры, если в семье есть ребенок, и одна комната отводится для детской. При таком способе зонирования необязательно сносить межкомнатные перегородки, можно использовать разные способы зонирования помещения.
- Кабинет-гостиная. Самый оптимальный способ отделить рабочую зону – приподнять ее на подиум.
Также можно использовать мобильные перегородки или стеллаж с открытыми полками. Однако следует помнить, что громоздкие перегородки способны визуально уменьшить пространство. - Кабинет-спальня. В таком случае, рабочий стол можно расположить поближе к окну, использовать гипсокартонную стену или стеллаж. Также при помощи освещения можно поделить комнату на две независимые функциональные зоны.
Зонирование
Главный враг маленьких квартир – хаос, беспорядок и нагромождение. При составлении плана «двушки» важно учитывать несколько основных моментов:
- у каждого члена семьи должна быть личная зона, и размер этой зоны, как правило, не играет особой роли.

- Ну кухне обязательно должна быть выделена вместительная и функциональная рабочая зона с плитой, посудомоечной машиной и раковиной. Если используется газовая плита, то объединять кухню с комнатой нельзя, но можно расширить дверной проем, использовать раздвижные двери. И в тоже время, категорически запрещается менять положение газовой плиты и закрывать доступ к ней.
- Вторая комната может выделена под спальню или детскую комнату. В ней можно разместить большую систему хранения, кровать, туалетный столик или рабочий стол.
- Если в комнате будет жить ребенок, то можно поставить кровать, рабочий стол и шкаф, при этом останется свободное пространство для игр. Если в комнате будут жить двое детей, то лучше выбрать функциональную трансформирующуюся мебель или двухъярусную кровать. Место у окна можно оборудовать под рабочий стол, чтобы для каждого ребенка была отдельная зона для учебы.

Способов зонировать пространство много. Самые распространенные и востребованные:
- использование разных способов отделки стен;
- дополнительные фальшстены из гипсокартона;
- мобильные перегородки и ширмы;
- шторы, занавески и шторы-нити;
- предметы мебели, шкафы, диваны;
- разные уровни пола и потолка.
Еще одна хитрость зонирования «хрущевки» – это большое светлое пространство. Если снести стены возможности нет, то можно отказаться от привычных дверей в пользу раздвижных. При помощи таких «номинальных» дверей можно создать единое пространство или скрыть от посторонних глаз отдельную зону.
Отделка
Мнение о том, что в интерьере небольших квартирах необходимо использовать исключительно светлые цвета, несколько преувеличено, ведь пастельные тона могут превратить квартиру в больничную палату.
На самом деле, можно сочетать яркие и насыщенные оттенки, просто делать это надо аккуратно и умеренно. Выбор цвета – безусловно, индивидуальное решение, но стоит помнить, что оттенки оказывают особое влияние на настроение человека:
- бежевый, светло-серый, кремовый, бледно-желтый и другие пастельные оттенки являются самыми популярными во всех современных стилях. Разнообразить такой интерьер можно при помощи черного, коричневого или любых ярких цветов.
- Вся палитра зеленого отлично сочетается с белым и коричневым, отлично подходит для эко стиля и при этом создает особое расслабленное настроение.
- Яркие и насыщенные цвета можно использовать в интерьере квартиры даже при оформлении стен, но важно разбавлять краски светлыми оттенками, которые могут присутствовать в мебели, занавесках и текстиле.

- Синий и голубой в интерьере отлично сочетаются с белым и серым. Также можно добавить солнечных красок, разбавив холодные оттенки желтым или зеленым.
Важно уметь сочетать цвета и оттенки, не бояться смелых решений и объединить отделку пола, стен и потолка в одном направлении. Тогда даже старая 2-х комнатная квартира может стать уютным и современным жильем.
Полы
Варианты отделки пола зависят от предпочтений и финансового состояния владельца квартиры. Можно выбрать стандартный линолеум, ламинат, плитку или ковровое покрытие, но все же любое покрытие лучше делать в светлых тонах или в максимально приближенной к ним цветовой палитре. Это могут быть серые, бежевые, белые оттенки или рисунки, имитирующие натуральное светлое дерево.
Ламинат и паркетную доску лучше укладывать вдоль длинной стены.
Проблема двухкомнатных «хрущевок» состоит в том, что могут возникнуть трудности при ремонте пола и сохранении единого рисунка, потому что комнаты могут находиться по разным сторонам здания, иметь разную форму. Поэтому лучше выбрать доски с неоднородным рисунком, который нет необходимости подбирать. Ковролин редко используется во всей квартире из-за своей непрактичности, но это отличный способ утеплить холодную комнату.
Потолки
Самый простой способ отделки потолка в малогабаритной квартире – использовать натяжной вариант. Он скроет все изъяны, неровности и трещины. Также можно использовать многоуровневые потолки с дополнительным светодиодным освещением. Дополнительное освещение по периметру потолка визуально увеличит длину комнаты.
Цвет потолка обязательно должен быть приближен к белому. Темные оттенки психологически будут давить, визуально уменьшат высоту потолка. Также отлично смотрится многоуровневый потолок с точечными встроенными светильниками.
Яркое освещение и сложные конструкции визуально «приподнимут» потолок и расширят пространство.
Стены
Самый распространенный способ отделки квартиры – выравнивание стен при помощи шпаклевки и оклеивания обоями. Несмотря на кажущуюся простоту работы, на самом деле, процесс очень затруднительный, потому что стены «хрущевки» не считаются ровными, а поклеить обои встык при этом получится не всегда. Местами разница между полотнами может достигать 2 см, поэтому потратить время и силы на идеальное выравнивание стен все же стоит. Существует несколько способов отделки стен:
- обои остаются самым распространенным вариантом. Можно использовать дорогие полотна с шелкографией. Лучше отдавать предпочтение обоям с вертикальными небольшими узорами и рисунками. Они помогут достичь эффекта высокого потолка.

- Отлично в небольшом помещении смотрятся фотообои с перспективой: городские пейзажи или природный ландшафт украсят любую комнату и создадут иллюзию присутствия.
- Отличная альтернатива – жидкие обои. Они легко наносятся и скрывают все изъяны неровных стен. Текстура позволяет создавать бесшовную поверхность, разнообразить интерьер необычными узорами.
Мебель
Разместить всю необходимую мебель в «хрущевке» – уже удача, но если вы хотите создать уникальный современный интерьер, то нужно выбирать стильную и компактную мебель. Все габаритные предметы (шкаф, диван, комод) стоит убрать в самый темный угол подальше от окна. Использовать лучше раскладные столы, раздвижные диваны, многофункциональные комоды.
В качестве системы хранения стоит выбирать встроенную мебель с глянцевыми, светлыми или стеклянными дверцами, поскольку темные цвета сделают мебель более громоздкой и тяжелой. Мягкая мебель может быть яркого и насыщенного цвета.
Кровать в спальню лучше выбрать с внутренними ящиками для хранения вещей и текстиля. Как будет осуществляться доступ – каждый решает сам. Существует два варианта: выдвижные ящики или подъем спального места. Каждый из них имеет плюсы и минусы. В выдвижных ящиках помещается меньше вещей, но доступ к ним облегчен, возможен в любое время. С подъемным механизмом дела обстоят абсолютно противоположно: места для хранения в разы больше, но доступ к ним может быть ограничен, если в это время на кровати спит человек. Цены на обе модели отличаются.
Также лучше выбирать кровати с мягким изголовьем, они значительно облегчат быт, сделают отдых более комфортным и расслабляющим. Не стоит экономить на покупке кровати.
Она должна быть большой и удобной. Даже если придется пожертвовать прикроватными тумбочками, все же стоит выбирать самую большую модель, которую может вместить спальня.
Декор
В маленькой квартире должно быть минимум декора. Открытые полки стеллажа лучше оставлять полупустыми, так как это создаст более легкую атмосферу. Не стоит использовать большое количество мелкого декора. Он будет дробить помещение на части и создавать ощущение захламленности и бардака.
Все же при ремонте двухкомнатной «хрущевки» стоит отдавать предпочтение простым формам, многоуровневому освещению, делать акцент на пространстве, потому что смелые дизайнерские идеи не всегда требуют большого количества декоративных элементов в интерьере. Главный акцент в гостиной лучше сделать на мягкой мебели и текстиле. Из-за дефицита декоративных элементов обивка мебели, напольное покрытие и занавески станут главной составляющей квартиры, поэтому подходите более тщательно к выбору ковра, дивана, штор и других деталей, таких как картины, лампы и вазы.
Стили
Обе комнаты и кухня должны отвечать одному стилю, выдерживаться в одной цветовой гамме и соответствовать временной эпохе. Сочетание разных стилей в маленькой «хрущевке» будет смотреться неуместно и даже нелепо. Ценителям свободы и открытого пространства стоит обратить внимание на современные стили оформления квартиры, они идеально подходят для квартир-студий. При этом акцент ставится на функциональности и свободе пространства.
- Для небольшой квартиры самый подходящий стиль – минимализм. Светлые оттенки, легкие занавески и минимум декора – все это создает эффект расширения пространства и позитивно влияет на состояние человека.
- Скандинавский стиль сочетает в себе особенности минимализма и игру цветов.
В данном стиле также преобладают светлые оттенки в интерьере, но допускается дополнительный декор в виде картин, декоративных предметов и цветов. При этом главный акцент делается на функциональности и комфорте. - Высокотехнологичный хай-тек отлично подойдет для современных и активных молодых людей. По сути, в интерьере воплощается эра высоких технологий. К тому же, такой стиль отлично подойдет и для оформления комнаты подростка. Предпочтение отдается светлым оттенкам и металлическому глянцевому блеску. Исключены объемные люстры и необычные декоративные элементы, но допускается использование картин, постеров и фотографий в тонких металлических рамках. Освещение должно быть хорошо продумано, предпочтение отдается простым геометрическим формам светильников.
- Стиль прованс пришел к нам из южной провинции Франции. Отличительные особенности – флористические мотивы, пастельные и природные оттенки: бежевый, бирюза, оливковый, голубой, зеленый, розовый, лавандовый, желтый и подобные, при этом интерьер не должен быть ярким и насыщенным.
Основной светлый цвет разбавляется естественной природной палитрой. Мебель может быть состаренной, с облупленной краской или сколами на дереве. Дополнить интерьер можно уникальными предметами: сундуком или старым комодом. Шторы и занавески должны быть легкими и полупрозрачными, допускается средняя длина до подоконника. В качестве декора приветствуется большое количество рюшей, кружева, скатертей и керамических статуэток. - В маленькой тесной «хрущевке» можно использовать разные стили, но ни в коем случае нельзя оформлять интерьер в шикарно и праздно украшенном барокко.
Независимо от того, какой стиль интерьера вы выберете, главное, чтобы пространство было эстетичным, функциональным и практичным.
Советы профессионалов
Дизайнеры советуют сочетать в интерьере не более трех цветов.
Один из них обязательно должен быть нейтральным и спокойным, а что касается остальных, то они могут быть смелыми и насыщенными, главное – не слишком кричащими, не перегружающими комнату. Дополнительные цвета уместно использовать в качестве акцентов. Это могут быть яркие картины, текстиль, шторы, обивка мебели или необычная авторская ваза. Главное, чтобы второй цвет был дополнительным, а третий – связующим звеном между первыми двумя.
Определитесь заранее, где будет установлен телевизор. Лучше выбирать плоский экран, и устанавливать его на стену при помощи поворотного кронштейна. Следует сразу позаботиться о том, чтобы провода были спрятаны.
Окно в «хрущевке» обычно имеет небольшие размеры, поэтому лучшим вариантов штор будут легкие полупрозрачные занавески. Таким образом, комната будет наполняться дневным светом и воздухом.
Стоит отказаться от плотных портьер и штор с ламбрекенами, поскольку они могут смотреться гармонично при составлении дизайн-проекта, но на практике сделают обстановку тяжелой, сжатой и пыльной.
Удачный дизайн «хрущевки» не может обойтись без качественного освещения. Главное, чтобы в квартире не оставалось темных углов. В зависимости от стиля в качестве основного потолочного освещения лучше выбирать встроенные светильники по всему периметру потолка, можно сочетать их с потолочной люстрой. Для индивидуального освещения стоит использовать локальные светильники на полу и стенах. Это могут быть всевозможные торшеры, бра и настольные лампы. Грамотно продуманное освещение поможет расставить акценты в квартире, выделить важные зоны и скрыть недостатки.
Варианты в интерьере
Большое зеркало в красивой раме способно преобразить интерьер «хрущевки» до неузнаваемости.
Для зонирования небольшой комнаты отлично подходят шторы-нити.
Данный вариант относится к эконом-классу. Они отлично пропускают воздух и свет, занимают немного места, и в любой момент их можно убрать, сделав помещение еще больше.
Выигрышно смотрится интерьер комнаты, когда цвета мебели, стен и занавесок совпадают.
При работе над обустройством кухни не стоит бояться смелых решений. Гарнитур с округлой формой сочетает в себе удобство, функциональность и стиль. При этом он располагается на площади 8 квадратных метров.
Сочетание бежевого, коричневого и насыщенного синего смотрится гармонично и привлекательной в интерьере кухни-гостиной.
Неплохой способ – расширить площадь кухни за счет прихожей.
Захватывающие фотообои смотрятся невероятно даже в маленькой комнате, создавая потрясающий эффект присутствия.
О том, как сделать перепланировку двухкомнатной «хрущевки», увидите в следующем видео.
Дизайн квартиры 42 кв. м.
Конечно, все обладатели квартир 42 кв. м. понимают, что из нее не получится королевского дворца. Но вот зрительно расширить территорию и создать в ней уют вполне возможно.
Примером этого может послужить квартира – студия, где грамотный дизайнерский подход поможет правильно воспользоваться имеющийся площадью, при этом создать необходимый простор, который, как многим кажется невозможен, на такой небольшой территории.
Наш пример планировки квартиры 42 кв. м. визуально кажется просторным, но на самом деле метраж составляет всего ничего. Такого результата специалисты интерьера добились с помощью нескольких моментов, которыми с легкостью можете воспользоваться и вы. Вот эти 3 подсказки:
Открытая планировка, а именно квартира – студия, которая в центральной части имеет свободное пространство, это и добавляет площади больше метража.
Предметы мебели необходимо сдвинуть немного к центру, потому что обычно в маленьких комнатах они расположены около стен.
Специалисты, как бы нарочно обращают на это внимание. Можете убедиться в этом взглянув на фото дизайна квартиры 42 кв. м.
На данном примере используют массивную кладку из кирпича и мощение из громоздких каменных плит, которые обычно вообще не применяют в маленьких комнатах.
Но при помощи этих деталей создается ассоциация простора лофта или другого свободного стиля.
Все эти несложные приемы помогут вам расширить площадь.
План
Вариант перепланировки квартиры 42 кв. м. Не рассматривая санузел, прихожую и скрытый шкаф, можно заметить, что студия выполнена в виде прямоугольника с нишей – альковом.
Кухонная рабочая зона отделена от основной при помощи барной стойки.
Кухня
Кухонное пространство разделено с гостиной не только барной стойкой, но и разницей в напольном покрытии. На кухне используется материал из камня с крупными ассиметричными фрагментами (очередной пример того, что массивные формы не всегда противопоказаны небольшим территориям), а в гостиной применяют паркетную кладку.
Островок на кухне не имеет цельного основания, а стоит на кирпичных «ножках». Во-первых, это соответствует стилю кирпичной стены, а во-вторых – это практично, потому что под столом остается местечко для ног, поэтому такой вариант прекрасно подойдет на роль обеденного стола.
Цельное основание для борных стоек не очень удобное решение, особенно для застолья. В добавок в него встроена варочная панель.
Так же кухня помимо пола и барной стойки отличается и разницей в потолке. В кухне и спальне он значительно ниже чем в основной комнате. Это отличное решение для проекта однокомнатной квартиры 42 кв. м. Что дает возможность дополнительно разграничить зоны и встроить необходимые лампы.
Понятно, чтобы создать интерьер двухкомнатной квартиры 42 кв. м. необходимо выбирать между важными для владельца местами. Если выбор падёт в сторону кухни, то придется жертвовать просторами спальни. На нашем примере созданное кухонное пространство в 30 метров, сократило спальню лишь до одного спального места (альковы) и не более.
Спальня
Небольшая спальня абсолютно не уступает другим по удобству и комфорту. Она не тесная и не вызовет «клаустрофобию».
Из – за того что нет передней стены, спальня становится единым целым с гостиной и получается однокомнатная квартира в 42 кв. м., но при необходимости можно закрыться и отдохнуть используя штору.
Альков спальни соответствует габаритам кровати. Стена на заднем плане оклеена обоями со спокойным принтом. Поэтому алькова похожа на комнату, а не на какой-либо шкаф.
Стена, разделяющая кухню и спальню оклеена черно – серыми обоями. Им соответствует темная плитка на «фартуке» с белыми швами. Наличие различной графики дает возможность, казалось бы, простой кухни со светлыми шкафами и интерьеру квартиры 42 кв. м. казаться очень достойно.
Гостиная
В гостиной специалистами используется минимум предметов мебели, в которые входят диван, кресло и ряд навесных шкафов.
На ограниченном пространстве всегда лучше использовать функциональную мебель. Здесь таким предметом является столик, который выполняет функцию хранения газет и журналов.
Как уже говорилось ранее, что мебель не расположена вдоль стен, как обычно, ставят в маленьких комнатах, а наоборот сдвинута к середине. Свободный угол занял торшер, освещение которого тоже помогает увеличить пространство.
Ванная комната
Ванна очень даже просторная. Душевая кабина без поддона, только с одним сливом. Распространённый прием: чем больше пола – тем просторнее комната.
Прихожая
В прихожей, как и на кухне пол из массивного камня. Что противоречит всем правилам того, что большие детали подходят лишь большим пространствам.
Надеемся, что наши советы и пример небольшой квартиры помогут вам в обустраивании собственного метража.
Фото дизайна квартиры 42 кв. м.
Хрущевка-Квартира с несколькими источниками света и розетками на потолке
17 сентября 2013 г.
Хозяева:
Кэтрин и Джордж
Количество комнат: 1
Метраж: 32 м²
Высота потолков: 2,8 м
Номер этажа: 4
До того, как начать ремонт своей квартиры в хрущевке, Екатерина и Георгий прожили в ней 3 года.Планировку квартиры площадью 32 м² пришлось полностью изменить. В качестве автора и дизайнера проекта выступил Валентин Грухин, в предыдущих проектах которого были разноплановые апартаменты, кальянная и большой цветочный магазин.
Для начала сдвинули одну из стен — таким образом кухня получила дополнительные квадратные метры и стала полноценной столовой, подходящей для приема гостей. Также достроили несколько новых стен — выделили небольшую зону под гардеробную. Благодаря обустройству подсобного помещения для хранения одежды, инструментов и других хозяйственных вещей, квартира не загромождена лишними шкафами.За 3 месяца ремонта заменено также все инженерное оборудование, водопровод, сантехника и электропроводка.
При добавлении вестибюля к центральному помещению стало значительно больше места. Кроме того, освещение здесь зонировано.
Любовь хозяев к вещам ИКЕА очевидна. Скажем, тумба этого бренда прекрасно вписалась в нишу и теперь служит для хранения мелочей. Двери, ведущие в гардеробную, тоже ИКЕА. Именно эта модель с зеркалами была выбрана для визуального расширения комнаты.Пикантная деталь с сомнительной функциональной ценностью – розетки на потолке.
Ванную и туалет объединили в единое целое, а стену, отделяющую их от кухни, перенесли. Теперь вместо ванны стоит холодильник. Первый, кстати, фактически упразднили ради душа. Мобильный обеденный стол часто используется в качестве бонусной зоны приготовления пищи. Ванную комнату хозяева оборудовали тумбой для стиральной машины, а над ней устроили несколько полок для моющих средств.Плитка в ванной была уложена горизонтально, хотя в каталоге предполагалась вертикальная укладка. Это сделано для визуального расширения пространства.
Речьо промышленном строительстве, 1954 г. — Archis
О широком внедрении промышленных методов, повышении качества и удешевлении строительства
Выдержки из выступления Никиты Хрущева на Всесоюзном совещании строителей, архитекторов, работников строительных материалов и производства строительного и дорожного машиностроения, работников проектных и научно-исследовательских организаций 7 декабря 1954 г.
Товарищи!
Прошло много времени с тех пор, как мы в последний раз проводили Национальную конференцию строителей, и теперь есть большая потребность в такой конференции.Я думаю, что настоящее собрание пойдет на пользу не только строительству, но и всей нашей работе как в промышленности, так и в других отраслях нашего народного хозяйства. […]
Актуальные вопросы индустриализации строительства
[….] В настоящее время существуют условия для широкой индустриализации строительства. Что это за условия? Прежде всего, у нас появился большой резерв квалифицированных рабочих и специалистов. В наших строительных организациях и промышленности строительных материалов работают многие тысячи прекрасных мастеров и новаторов.У нас есть заводы, способные обеспечить наших строителей современным оборудованием, облегчающим работу и повышающим производительность. У нас есть расширяющиеся производственные мощности, которые позволяют нам поставлять строительной отрасли быстровозводимые железобетонные конструкции, детали и строительные материалы. […]
Широкое расширение производства сборных железобетонных конструкций и деталей даст огромный экономический эффект. Наши строители знают, что до недавнего времени шли споры о том, по какому из двух путей идти в строительстве – использовать сборные конструкции или монолитный бетон.Не будем называть имен и упрекать тех работников, которые пытались направить нашу стройиндустрию на использование монолитного бетона. Я думаю, что эти товарищи теперь сами понимают, что позиция, которую они заняли, была неправильной. Теперь же, кажется, всем ясно, что надо идти по более прогрессивному пути – пути использования сборных железобетонных конструкций и деталей. (Аплодисменты.)
Каковы последствия использования монолитного бетона в строительстве? Повышенная грязь на строительных площадках.Использование пресс-форм всех видов и форм. Ненужный расход железа. Расход цемента. Потери инертных материалов и бетона.
И каковы последствия использования готовых деталей? Использование сборного железобетона позволит изготавливать детали так, как это делают в заводостроении, — даст возможность перейти на заводские методы строительства. (Аплодисменты.) […]
Стеновые панели и секции потолка/пола должны быть декорированы в заводских условиях. Эти изделия должны поступать на строительную площадку уже готовыми, полностью готовыми к установке.Иначе какая выгода от использования заводского изготовления, если мы изготовим деталь на заводе, установим ее на 8-м этаже, а потом начнем думать, как почистить или доработать ее поверхность?
Бетонные конструкции должны быть легкими, без лишнего веса. […]
Кирпич, основной строительный материал, всегда использовался и продолжает использоваться в тех случаях, когда строительство в основном ведется вручную. В таких случаях большое значение имеет вес материала, использованного в стенах, вес кирпича.В наш век — при наличии бетона, электродвигателей, кранов и других механизмов — у нас нет оправдания тому, чтобы продолжать использовать старые методы работы. Всем известно, сколько времени и труда нужно для изготовления кирпича. Глину нужно выкапывать из каменоломен, обрабатывать глинобитной машиной для производства кирпича-сырца. Затем этот материал сушат, загружают в печь, обжигают, а готовые кирпичи переносят на склад, вывозят на строительную площадку, поднимают на леса и укладывают на стену.И все это нужно проделывать много раз, манипулируя каждым кирпичиком, как кусочками мозаики.
Не лучше ли вместо кирпича сделать бетонные секции стен такого размера, который будет удобен для имеющихся в нашем распоряжении грузоподъемных механизмов – т.е. весом в две, три, пять тонн? Преимуществом использования секций является высокий уровень производительности и высокая производительность. Не случайно во многих других странах в строительстве широко используется не кирпич, а бетон. […]
О индустриализации строительства не может быть и речи всерьез, если мы собираемся и впредь увеличивать число строительных организаций.Все, конечно, понимают, что не в силах мелких и, следовательно, слабых строительных организаций применять индустриальные методы работы. Мы должны взяться за решительное укрепление наших строительных организаций. Без этого не может быть и речи о индустриализации строительства.
Весьма показательно в этом отношении сокращение числа строительных организаций в Москве, где на базе 56 строительных трестов Моссовета и различных министерств и ведомств создана единая организация — Главмосстрой.Когда обсуждалось создание Главмосстроя, много говорилось о том, что Моссовет не справится с такой крупной организацией, и были опасения, что отстранение министерств приведет к срыву плана строительства жилых домов. Можно было предположить, что в первый год существования Главмосстроя возникнут некоторые организационные проблемы, которые могут помешать выполнению плана. Однако все подобные опасения оказались беспочвенными. […]
Наша страна в больших масштабах занимается строительством промышленных предприятий, жилых домов, школ, больниц и других сооружений.Эта программа строительства имеет жизненно важное значение. Мы обязаны значительно ускорить, улучшить качество и удешевить строительство. Для этого есть только один путь – путь самой широкой индустриализации строительства.
Устранение недостатков конструкции; улучшение работы архитекторов
[…] Учитывая масштабы, в которых мы строим промышленные предприятия, жилые дома, школы, больницы, объекты культуры и быта, любые задержки в проектных работах недопустимы.Вся наша страна покрыта стройками. Советское государство ежегодно выделяет на строительство многие миллиарды рублей. Буквально каждый из нас заинтересован в том, чтобы строительные работы шли гладко. Недопустимо, чтобы строительные работы часто затягивались из-за нерасторопности наших проектных организаций, а иногда проектирование даже простых зданий затягивалось на два года и более.
Интересы индустриализации строительства диктуют необходимость перестроить работу наших проектных организаций, сделать основным элементом их работы изготовление типовых проектов и использование уже существующих типовых проектов.[…]
Многие сотрудники проектных и проектных организаций недооценивают важность типового проектирования.
Доказательства этого можно увидеть в следующих фактах. Из 1100 строительно-проектных организаций в нашей стране лишь 152 частично занимаются изготовлением типовых проектов. С 1951 по 1953 год максимум один процент средств, выделяемых на конструкторские работы, тратился на изготовление типовых проектов. В 1953 г. по типовым проектам было построено лишь 12% от общего объема возведенных промышленных зданий.И в этом году произошло лишь небольшое улучшение ситуации. […]
Все они [архитекторы] согласны с тем, что использование типовых проектов значительно упростит и улучшит качество строительства, но на практике многие архитекторы, инженеры, а в промышленном строительстве и технологи тоже стремятся создавать только свои от дизайнов.
Почему это происходит? Одной из причин, очевидно, является то, что в том, как мы обучаем наших архитекторов, есть изъяны. Руководствуясь примером великих мастеров, многие молодые архитекторы, едва дождавшись момента, когда они переступят порог своих архитектурных институтов или как следует встанут на ноги, захотят спроектировать не что иное, как уникальные здания, и поспешат поставить себе памятник.Если Пушкин создал себе памятник «нерукотворный», то многие архитекторы считают, что они просто обязаны создать себе «рукотворный» памятник в виде здания, построенного по уникальному проекту. (Смех, аплодисменты.) […]
Почему в настоящее время используется 38 типовых проектов школ? Это целесообразно? Причина этого, очевидно, в том, что многие рабочие подходят к своей работе в строительстве, не заботясь об экономии.
Мы должны выбрать небольшое количество типовых проектов жилых домов, школ, больниц, детских садов, детских яслей, магазинов и других зданий и сооружений и вести программы массового строительства только по этим проектам в течение, скажем, пяти лет.По истечении этого периода мы проведем обсуждение и, если не появятся лучшие проекты, продолжим в том же духе следующие пять лет. Что не так в этом подходе, товарищи?
[…] Хочу поделиться с вами своими впечатлениями и комментариями о том, как работают архитекторы. Прежде всего хочу обратиться к президенту Академии архитектуры товарищу Мордвинову. Товарищ Мордвинов, мы часто встречались в Москве по рабочим вопросам. Я знаю вас как хорошего организатора: вы показали свои способности в проекте строительства высокоскоростного конвейера при благоустройстве Большой Калужской улицы.Тогда впервые велось строительство скоростного конвейера, и в нем участвовал товарищ Мордвинов. Однако после войны товарищ Мордвинов претерпел изменения. Он стал другим человеком. Как в песне из оперы «Королевская невеста»: «Это не тот Григорий Грязнов, которого я знал!» большая часть вины лежит на многих архитекторах, которые используют архитектурные излишества для украшения зданий, построенных по уникальным проектам.
Такие архитекторы — камень преткновения на пути индустриализации строительства. Чтобы строить быстро и успешно, мы должны использовать в нашем здании типовые проекты, а это, видимо, не по вкусу некоторым архитекторам…
Если архитектор хочет идти в ногу с жизнью, он должен знать и уметь применять не только архитектурные формы, орнаменты и различные декоративные элементы, но и новые прогрессивные материалы, железобетонные конструкции и детали, и, прежде всего, должен быть специалистом по экономии средств в строительстве.И вот за что на конференции критиковали товарища Мордвинова и многих его коллег – за то, что при проектировании здания забывали о главном, т. фасадов, допуская множество излишеств.
Фасады жилых домов иногда увешаны множеством всевозможных излишних украшений, указывающих на отсутствие вкуса у зодчих. Строители иногда даже испытывают трудности с выполнением этих украшений.
Большое влияние в этом вопросе оказало строительство высотных зданий. При проектировании таких зданий архитекторы в основном интересовались созданием силуэта и не задумывались о том, сколько будет стоить строительство и эксплуатация этих зданий.
Придание стене сложного контура просто в целях благоустройства приводит к излишним затратам на эксплуатацию здания из-за больших теплопотерь. Вот почему ежегодный перерасход на топливо для здания на Смоленской площади, например, составляет 250 000 рублей.Это для одного здания отдельно.
Приведу некоторые цифры пропорций площадей этажей в высотных домах.
Общая площадь: 100%.
Здание на Красных воротах
рабочие помещения 28,1%
подсобные помещения 23,1%
инфраструктура и услуги 14,9%
строительство 33,9%Здание на Смоленской площади
рабочие помещения 30%
подсобные помещения 24%
инфраструктура и услуги 11%
строительство 35%
Эти цифры наглядно показывают, как мало места в высотных домах занимают основные функции и сколько отдано так называемым «строительным конструкциям».Под «строительными конструкциями» мы подразумеваем стены и другие конструкции. В высотных зданиях такое пространство намного превышает норму в результате акцента на придании зданиям впечатляющего силуэта. Это пространство, на которое можно только смотреть; не для проживания и работы. (Оживленная реакция, смех, аплодисменты.) […]
Когда говорил тов. Мордвинов, я спросил его о стоимости высотной гостиницы «Украина», архитектором которой он был. Надо сказать, что тов. Мордвинов не отстает, а идет в ногу с теми, кто допускает излишества в архитектурном убранстве зданий.Стоимость одного квадратного метра площади, занимаемой под основные функции в гостинице «Украина», составляет 175 процентов от стоимости такой площади в гостинице «Москва».
Неужели допустимо, чтобы в одном и том же городе – Москве – разница в стоимости строительства жилых домов по проектам разных авторов составляла 600-800 рублей за каждый квадратный метр жилой площади. […]
Некоторые архитекторы страстно любят добавлять шпили на вершины зданий, что придает этой архитектуре церковный вид.Нравится ли вам силуэт церквей? О вкусах спорить не хочу, но для жилых домов такой внешний вид излишен. Неправильно использовать архитектурное убранство, чтобы превратить современный жилой дом в нечто, напоминающее церковь или музей. Это не создает дополнительных удобств для жильцов, а лишь удорожает эксплуатацию здания и удорожает его стоимость. И все же есть архитекторы, которые этого не учитывают.
Архитектор Захаров, например, представил планы застройки Большой Тульской улицы в Москве со строительством домов, очертания которых мало отличаются от церквей.На просьбу объяснить причины, по которым он это делает, он ответил: «Наши проекты подходят для высотных зданий; мы должны показать силуэты зданий». Вот что, оказывается, больше всего волнует товарища Захарова: ему нужны красивые силуэты, а людям нужны квартиры. У них нет времени любоваться силуэтами; им нужны дома, чтобы жить! (Аплодисменты). В своих проектах домов на Люсиновской улице Захаров решил поставить скульптуры по углам своих домов, начиная с 8-го этажа и выше.На верхнем этаже он срезал углы, а в этих косых углах поставил окна, снаружи которых на подоконниках должны были стоять скульптуры. Пятистенная комната с угловым окном неудобна для проживания, не говоря уже о том, что жители этой комнаты должны всю жизнь пялиться на спину скульптуры. Конечно, жить в такой комнате не особо приятно. Хорошо же, что эти дома так и не были построены и что тов. Захарова удержали от его искусства.
И все это называется архитектурно-художественной отделкой зданий! Нет, товарищи, это архитектурное извращение, приводящее к порче материалов и к ненужной трате ресурсов. Московские организации приняли правильное решение, освободив товарища Захарова от должности руководителя архитектурной мастерской. Но для блага всех нас это нужно было сделать намного раньше. […]
Серьезные ошибки, допускаемые проектными организациями и отдельными архитекторами, во многом объясняются неправильными указаниями Академии Архитектуры и многих ведущих архитекторов.Рассмотрим вид руководства, которое давали до недавнего времени:
А.Г. Мордвинов, президент Академии архитектуры, в статье «Художественные проблемы в советской архитектуре», опубликованной в журнале «Архитектура» № 1 (1945 г.), пишет:
«Архитектура служит удовлетворению эстетических потребностей людей… создание важных произведений архитектуры требует строительных объемов, не продиктованных прямой практической необходимостью (портики, монументальные залы, башни)… Сомневаюсь, что есть хоть один город, который, если хочет быть красивым, может обойтись без высотных композиций.
Профессор А.В. Бунин в статье «Об использовании городского наследия в послевоенном восстановительном строительстве», также опубликованной в вышеуказанном сборнике, утверждает:
«Для украшения города нужны целые здания — в том числе с куполами и башнями. – которые не оправдываются никакой утилитарной функцией… Советский город переживает кризис вертикального развития… Городские центры с их общественными зданиями, башнями и купольными сооружениями должны быть уникальными конструкциями, не прибегающими к стандартизации.
Я мог бы привести еще много примеров таких высказываний. […]
Некоторые архитекторы пытаются оправдать свои неверные принципы и излишества в своих проектах ссылками на необходимость борьбы с конструктивизмом. Но борьба с конструктивизмом — это флаг, которым размахивают, чтобы скрыть растрату государственных ресурсов.
Что такое конструктивизм? Вот как, например, определяет это направление Большая советская энциклопедия: «Конструктивизм… заменители художественного творчества «исполнение конструкций» (отсюда и название «конструктивизм»), т.е. голый техничность. Публично призывая к функциональной, конструктивной «целесообразности» и «рациональности», конструктивисты на самом деле двигались в направлении эстетического любования формой, оторванной от содержания… Следствием этого был тот антихудожественный, угнетающий «коробочный стиль», который характерен для современной буржуазной архитектуры… Образцы конструктивизма подвергались резкой критике во многих инструкциях и постановлениях партии…» (Большая советская энциклопедия, 1953, т. 22, с.437)
Это определение конструктивизма, конечно, не является исчерпывающим. Но и эта характеристика конструктивизма показывает несостоятельность некоторых зодчих, которые, прикрываясь фразами о борьбе с конструктивизмом, на деле приносят в жертву фасадам, т. е. форме, удобству внутренней планировки и эксплуатации здания, и тем проявляют пренебрежение к насущным нуждам людей.
Некоторые архитекторы, выступающие за необходимость борьбы с конструктивизмом, виновны в обратном: украшают фасады зданий излишними, а иногда и вовсе ненужными декоративными элементами, требующими затрат государственных средств.
Здания, не имеющие башен, надстроенных портиками, колоннами или фасады которых не украшены элементами сценических декораций, эти архитекторы называют «коробками»; и они обвиняют их в рецидиве конструктивизма. Таких архитекторов, пожалуй, можно было бы назвать «конструктивистами наизнанку», поскольку они сами находятся на скользком пути к «эстетическому любованию формой, оторванной от содержания». […]
Борьба с конструктивизмом должна вестись разумными средствами. Мы не должны увлекаться архитектурным декором или эстетическим украшением, а также не должны венчать наши здания совершенно неоправданными башнями и скульптурами.Мы не против красоты, но мы против излишеств. Фасады зданий должны иметь красивый и привлекательный внешний вид, а это должно достигаться за счет соблюдения пропорций всего здания, стройности оконных и дверных проемов, удачного расположения балконов, правильного использования фактуры и цвета облицовки. материалы, правильное представление стеновых частей и конструкций в зданиях из крупногабаритных секций и панелей. […]
В связи с этим хочу рассказать о впечатлениях, которые у нас сложились после нашей конференции в городе Свердловске.Свердловск — большой красивый город, в котором ясно видна мощь Советского Союза. Здесь есть важные фабрики, производящие прекрасное оборудование. Но когда дело доходит до городского строительства и благоустройства, у этого крупного центра есть несколько серьезных недостатков. Например, при реконструкции здания горисполкома главный фасад был дополнен башней и шпилем. Строительство одного только шпиля обошлось почти в два миллиона рублей, а реконструкция всего здания обошлась в девять миллионов. Большая часть этих расходов, вероятно, была связана с работами по подготовке фасада высотной части здания и возведению башни.Денег, потраченных на строительство шпиля, хватило бы на строительство двух школ на 400 учеников каждая.
На одной из улиц Свердловска стоит большой пятиэтажный дом.
– «Это мельница, – объяснил нам секретарь обкома тов. Кутырев, а потом добавил: – Но мы хотим построить новую мельницу и переделать это здание в гостиницу». — как? — спросили мы его.
– Да, – сказал тов. Кутырев. «Наш план состоит в том, чтобы превратить его в отель.
– «А зачем перестраивать мельницу под гостиницу?» – сказали мы ему. «Не лучше ли построить новую гостиницу?»
Судите сами. Есть ли смысл переоборудовать здание, которое в настоящее время используется как мельница, в гостиницу, а затем построить совершенно новую мельницу? (Смех, аплодисменты.)
На эти деньги можно построить новую хорошую гостиницу, которая будет лучше и дешевле. Где здравый смысл, где экономическая целесообразность?
Дальше мы продолжили путь вокруг Свердловска. Секретарь обкома сказал:
«Эту дорогу тоже думаем переделать.
– «И что ты хочешь с ним делать?»
– «Заасфальтировать».
Проезжая часть была выложена гранитной брусчаткой. Он переживет наших внуков, а асфальт не продержится и десяти лет. К чему, спрашивается, желание портить гранитную проезжую часть?
Когда мы подъехали к зданию обкома партии, секретарь обкома объявил:
– «Вот наше здание обкома. Думаем реконструировать.
– «Что за реконструкция? С какой целью?
– «Фасад нам не нравится.Его нужно полностью изменить».
Что подразумевается под «измененным»? Сколько будет стоить модификация шестиэтажного дома? Очевидно, что построить новое здание дешевле, чем реконструировать старое.
Когда слышишь подобные предложения, невольно вспоминаешь, как Щедрин высмеивал губернатора, снесшего все построенное его предшественником. Оказывается, привычки, высмеянные великим русским сатириком Щедриным, живы среди нас и сегодня! (Аплодисменты.) […]
Повышение качества: важнейшая задача, стоящая перед нашими строителями
Товарищи! Особое внимание следует уделить повышению качества строительства.Мы должны строить не просто быстро, а неизменно хорошо и крепко, и мы должны дорожить своей репутацией строителей. Здания должны быть удобными для проживания и удобными в эксплуатации. Плохо построенные здания приходится ремонтировать через короткие промежутки времени, а это означает необходимость тратить дополнительные деньги. Это касается всех видов строительства.
В первую очередь хотелось бы сказать о качестве строительства в жилых домах. Хорошо ли сделаны стены и потолки наших зданий? Я думаю, что они очень хорошо сделаны.В наших жилых домах, школах, больницах и других зданиях стены и потолки устроены так, что будут выполнять свои функции сотни лет. В этом не может быть никаких сомнений, поскольку мы используем железобетон для строительства. Но надо сказать, что отделка зданий часто выполняется плохо. Более того, многие рабочие мирились с явно недобросовестной работой по отделке зданий. Об этом с полной справедливостью говорили многие товарищи на конференции.
В последнее время нам с товарищами Булганиным и Микояном пришлось побывать во многих городах Дальнего Востока, Сибири и Урала. За нами хорошо ухаживали. Что и понятно — учитывая, что мы требовательные гости и имеем право критиковать — и на самом деле делаем даже больше, чем просто критиковать. Поэтому, естественно, они старались обеспечить нам наилучшие условия. (Смех, аплодисменты.) В городе Свердловске мы жили в гостинице. Этот отель был хорошо и крепко сделан. Надо полагать, что нам дали далеко не самые плохие номера.(Смех.) А в этой гостинице мы увидели, что санузел и санузел построены очень плохо, качество отделки плохое. Мы вызвали директора гостиницы и руководителей города и сказали им: «Посмотрите, какая плохая работа!»
Очевидно, что при строительстве не было соблюсти должных норм. Плитка плохого качества, уложена небрежно. Трубы в туалетах и ванных комнатах покрылись ржавчиной и были наспех выкрашены какой-то серой краской еще до нашего приезда, при этом на стены еще разбрызгивалась краска.Соединяли эти трубы очень плохо, и я, как бывший сантехник, очень возмущался: даже в дореволюционное время стыки труб в шахте делались лучше и чище, чем в этой гостинице в Свердловске. […]
Строителям нужно сообщить о таких недостатках — а их много — и попросить резко улучшить качество своей работы. Товарищ Юдин, министр промышленности строительных материалов, и другие работники промышленности строительных материалов не должны зазнаваться, а должны учиться у наших друзей в Чехословакии, которые делают прекрасные строительные материалы и детали.(Аплодисменты.) Им тоже есть чему поучиться у ГДР, где производят прекрасную облицовочную плитку. Надо сказать без обиняков, что некоторые товарищи слишком мало учатся у других и, главное, даже не хотят учиться. (Аплодисменты.) […]
Особое внимание следует уделить повышению качества панелей из дерева. Во многих домах оконные переплеты и двери сделаны плохо. А вы знаете, когда кто-то входит в дом, то прежде всего замечает дверь — как хорошо она закрывается, есть ли в ней щели, как она покрашена.Он также смотрит, как сделаны окна и на что похожа различная фурнитура. Мы должны постоянно и настойчиво работать над улучшением качества отделочных работ. Лестничные клетки в жилых домах также должны быть хорошо оформлены.
Многое предстоит сделать для улучшения качества звукоизоляции домов. Особенно нужно поработать над изоляцией между квартирами; это должно быть безупречным. В этом случае необходимо убедиться, что стены между квартирами и между этажами соответствуют требованиям по звукоизоляции.[…]
Производство линолеума необходимо расширить. Полы, покрытые линолеумом, не хуже паркетных; они гигиеничнее и умнее. Ухаживать за такими полами проще, чем за паркетными. Всем известно, что паркет нужно натирать воском – дело сложное и требующее дополнительных затрат. Мы должны ценить женский труд и всячески стараться его облегчить. […]
Для отделки наружных стен зданий наилучшим материалом является керамическая плитка. Керамическая облицовка долговечна, эстетична и не меняет цвет в процессе эксплуатации.[…]
[…] Главное, порядок должен соблюдаться: ни одно строительство не должно начинаться без архитектурного проекта, без сметы, без детального плана. (Аплодисменты.) А что сейчас происходит на практике? Не успело принять решение что-то строить, как приходит отчет о том, что строительство началось. И нет даже архитектурного плана здания. Общеизвестно, что перед началом строительства необходимо хорошо подготовить площадку, проложить дороги, позаботиться о водо- и электроснабжении, составить полные архитектурные планы […]
Мы многое теряем из-за того, что наши строительные площадки не получают металл и другие материалы в нужном ассортименте.Я приведу два примера, но строители могли бы плодить такие примеры без конца. Для железобетона нужна проволока диаметром 5,5 мм. Никакого нет. Строителям говорят: берите проволоку на 1 мм больше в диаметре. Вы можете подумать, что это почти не имеет значения — всего один миллиметр, из-за которого не стоит спорить. А ведь в 1953 году при строительстве Минстроя на этот миллиметр приходилось лишние 4800 тонн металла. Вот за такую фигуру Госплан ратует — и совершенно справедливо.Так вот, товарищи, чего стоит этот миллиметр […]!
Повышение производительности труда, создание резерва квалифицированных строителей
[…] Общеизвестно, что в строительном секторе есть много возможностей для повышения производительности труда и, следовательно, для увеличения заработной платы рабочих. Такой простор имеется в механизации строительных работ; правильное использование мощного оборудования на наших строительных площадках; переход на промышленные методы строительства; повышение квалификации рабочих; более эффективное использование передового опыта, полученного новаторами; укрепление производственной дисциплины.[…]
Для повышения реальной заработной платы рабочих необходимо обеспечить рост производительности труда и рост заработной платы каждого работника.
Есть много примеров, убедительно доказывающих возможности повышения производительности труда и повышения заработной платы рабочих. Вот один из таких примеров. Я сравню две школы из множества построенных в Москве в 1954 году – одну в Томмаковском переулке, построенную из кирпича; другой, в Кутузовской слободе, построенный из крупных блоков.Обратите внимание на разницу в количестве труда, требуемого двумя школами. На кладку кирпичных стен и возведение карнизов, потолков и полов, лестниц и перегородок было затрачено 7360 человеко-дней, в то время как на такие же работы в крупноблочном здании потребовалось 1780 человеко-дней – или всего 24% от количества работ. человеко-дней, затраченных на школу из кирпича. Средняя заработная плата рабочего за указанные виды работ в кирпичной школе составляла 268 руб. за человеко-день, а в блочной — 1432 руб., т.е.е. в 5,3 раза больше. Если рассматривать все виды работ в кирпичной школе, то оплата за человеко-день составила 142 рубля, а во второй школе 261 рубль, т. е. в 1,8 раза больше. Что касается использования кранов, то при строительстве первой школы было задействовано 314 машино-смен; в то время как для второго требовалось 164, или 54%. Вот где есть, товарищи, простор для роста производительности труда и повышения заработной платы! […]
Товарищи! Заканчиваю свое выступление выражением уверенности в том, что строители, архитекторы, инженеры, рабочие промышленности строительных материалов и машиностроительного и дорожного машиностроения, работники проектных и научно-исследовательских организаций будут выполнять выполнять задачи, возложенные на них партией и правительством; еще больше повысит уровень, темпы и качество строительства в нашей стране; ускорит ввод фабрик, рудников, электростанций и мануфактур; и будут строить жилые дома, школы и больницы лучше и красивее.До новых встреч на очередной конференции строителей. Желаю вам дальнейших успехов, товарищи! (Бурные, непрерывные аплодисменты. Все встают)
Ричард Никсон и Никита Хрущев устраивают «кухонные дебаты»
Во время торжественной церемонии открытия Американской национальной выставки в Москве вице-президент Ричард Никсон и советский лидер Никита Хрущев участвуют в жарких дебатах о капитализме и коммунизме в разгар Модель кухни для ярмарки. Так называемые «кухонные дебаты» стали одним из самых известных эпизодов холодной войны.
В конце 1958 года Советский Союз и Соединенные Штаты договорились об организации национальных выставок в странах друг друга в рамках своего нового акцента на культурный обмен. Советская выставка открылась в Нью-Йорке в июне 1959 года; Американская выставка открылась в парке Сокольники в Москве в июле. 24 июля, перед официальным открытием московской выставки для публики, вице-президент Никсон принимал визит советского лидера Хрущева.
Пока Никсон вел Хрущева по американской выставке, знаменитый нрав советского лидера начал вспыхивать.Когда Никсон продемонстрировал несколько новых американских цветных телевизоров, Хрущев выступил с нападками на так называемую «Резолюцию о порабощенных нациях», принятую Конгрессом США за несколько дней до этого. Резолюция осуждала советский контроль над «порабощенными» народами Восточной Европы и призывала всех американцев молиться об их освобождении. Осудив резолюцию, Хрущев высмеял демонстрируемые американские технологии, заявив, что в Советском Союзе через несколько лет будут такие же гаджеты и бытовая техника.Никсон, никогда не уклонявшийся от дебатов, подстрекал Хрущева, заявляя, что российский лидер «не должен бояться идей. Ведь ты же всего не знаешь». Советский лидер огрызнулся на Никсона: «Вы ничего не знаете о коммунизме, кроме страха перед ним».
В сопровождении небольшой армии репортеров и фотографов, следовавших за ними, Никсон и Хрущев продолжили спор на кухне модельного дома, построенного на выставке. Повышая голоса и указывая пальцами, двое мужчин бросились друг на друга.Никсон предположил, что постоянные угрозы Хрущева применить ядерные ракеты могут привести к войне, и упрекнул Советский Союз за то, что он постоянно перебивал его, пока он говорил. Восприняв эти слова как угрозу, Хрущев предупредил об «очень плохих последствиях». Возможно, чувствуя, что обмен зашел слишком далеко, советский лидер затем заметил, что он просто хочет «мира со всеми другими народами, особенно с Америкой». Никсон довольно застенчиво заявил, что он «был не очень хорошим хозяином».
На следующий день «кухонные дебаты» попали на первые полосы газет в США.На несколько мгновений в рамках «современной» кухни дипломатические перчатки слетели, и Америка и Советский Союз устно поспорили о том, какая система лучше — коммунизм или капитализм. Однако, как и во многих битвах времен холодной войны, явного победителя не было — за исключением, возможно, американских СМИ, которые были в восторге от этого драматического столкновения.
ПОДРОБНЕЕ: Хронология холодной войны
Дизайн интерьеров квартир с кирпичными стенами. Дизайн комнаты с кирпичной стеной
«Голые» кирпичные стены стали украшать интерьеры с тех пор, как люди стали приспосабливать заброшенные производственные помещения под жилье.Сегодня они популярны в основном благодаря моде на лофт и индастриал. Но увидеть их можно и в оформлении комнат в стиле Хай-Тек, Кантри, Скандинавии, минимализма и ар-дека. Как выбрать подходящие материалы и с чем можно сочетать кирпичную стену в интерьере? Читайте далее в нашей статье С 30 фото!
Как сделать кирпичную стену в интерьере: выбираем материал
Обычную кирпичную стену в интерьере можно покрасить и сделать ее имитацию плиткой или обоями.
Чтобы настоящая стена из кирпича выглядела эстетично, вам понадобится:
- Имея это, а затем протрите швы;
- Тщательно промойте и дайте высохнуть;
- Чистая и подготовленная поверхность покрыта бесцветным лаком, краской на водной основе или стихе.
Если вы живете не в кирпичном доме, обратите внимание на использование плитки под кирпич («кирпичный шпон»). Он достаточно тонкий и не уменьшит площадь помещения, в отличие от настоящей кирпичной кладки.
Имитация кирпичной стены в интерьере с помощью обоев – самый простой вариант, не требующий больших затрат. Вы можете выбрать обои под покраску, которые только передадут фактуру кирпича, и вы сами покрасите их в нужный цвет.
Или купить готовые цветные обои, как на следующих фото.
Чем можно покрасить кирпичную стену в интерьере
Расписав кирпичную стену красками или стихами, можно создать интересный дизайн в гостиной или любой другой комнате.Все, что вам нужно, это подготовить стену и определиться с цветом и способом покраски. Например, это может быть:
- Стена из белого кирпича в интерьере – очень модный и элегантный вариант;
- Эффект дерзкой побелки или потертостей. Его создают, разбавляя краску водой в пропорции 3:1 и более. Нанесите раствор на стену, подождите немного, пока краска впитается и повторите процедуру еще раз.
- «Морской кирпич» — покрытие стен специальным кирпичом, что позволит получить более насыщенный тон.
Как смотрится роспись кирпичной стены в интерьере — смотрите фото ниже!
Читайте также:
Что такое кирпичная стена в интерьере
Как оформить остальные стены в интерьере, если одна из них кирпичная? Ответ на этот вопрос зависит от дизайна вашей комнаты. В целом кирпичная стена прекрасно сочетается со стенами:
- Оштукатуренная или окрашенная краска белого, бежевого, серого или красного оттенка;
- Оклеенные обои в полоску или с мелким рисунком;
Обратите внимание, что мебель и дополнительные аксессуары подбираются с учетом стиля в интерьере.Если это так, то стоит выбрать яркий декор в богемном духе. Красивый текстиль сделает уютным любое помещение с кирпичными стенами, похожими на деревянные элементы. Получите порцию вдохновения со следующими фото!
Кирпичные стены — 10 фото в дизайне интерьера:
Кирпич Б. современный интерьер Связан с многовековыми традициями и придает фундамент и весомость жилому пространству. Использовать его можно в различных стилях, однако наиболее широко кирпичная кладка используется в лофте, скандинавском стиле и всевозможных кантри.Отдельные элементы будут уместны в современных стилевых направлениях, таких как минимализм, техно, модерн, эклектика.
Кирпич в интерьере: Способы отделки
Кирпичная кладка Можно использовать для отделки различными способами:
- Фрагмент. Кладка – это небольшая часть стены, подчеркивающая фундамент стен дома. Этот прием используется, например, в скандинавском стиле.
- Акцент. Кирпичная кладка выделяется частью стены, на которую хочется обратить особое внимание.Это может быть место размещения ТВ-панели, часть стены за изголовьем кровати, каминная зона или другое.
На фото кирпичной кладки выделена каминная зона. Проект: «Интерьер 2-х комнатной квартиры в бежевых тонах»
- Стена. Целая кирпичная стена в интерьере тоже может выглядеть очень декоративно. Обычно выделяют эту часть комнаты, которая несет основную смысловую нагрузку. В гостиной это может быть стена, возле которой стоит диван, в спальне — стена за изголовьем кровати, в кухне — стена возле обеденной зоны.
На фото белая кирпичная стена в кухне-гостиной. Проект от Bohostudio. «Интерьер квартиры 56 кв. м.»
- Элемент. Из кирпича можно построить отдельные архитектурные элементы. Это может быть арка или, например, участок отдельной стены, который может служить основанием барной стойки, или подставкой для аквариума. Из кирпича также делают зонирующие перегородки в квартирах-студиях.
На фото Барный поток из кирпича в скандинавском интерьере студии 42 кв.м.м.
Основным недостатком кирпича как отделочного материала является значительный вес и объем. В небольших помещениях кирпич «съедает» значительный объем, что нежелательно. В таких ситуациях можно использовать материалы, имитирующие кирпичную кладку. Стена «под кирпич» в интерьере маленькой комнаты создаст необходимое впечатление и при этом не уменьшит ее площадь.
Кирпичный цвет в интерьере
Поверхность кирпичной кладки, как правило, обрабатывается с целью устранения избыточной пористости, облегчения уборки, а также наиболее гармоничного вписывания ее в стилистику помещения.Если нужно оставить естественную кладку, ее покрывают прозрачными составами. Но чаще кирпичные стены красят, выбирая в каждом конкретном случае наиболее подходящий цвет. Ничто не мешает сделать кирпичную кладку зеленого, лилового или розового цвета, но чаще всего используются традиционные «кирпичные» цвета.
На фото частично окрашенный в белый цвет Кирпич Б.дизайн небольшой студии 22 кв. м.
Белый кирпич в интерьере
Белый – цвет, наиболее часто используемый в стилях минимализм, скандинавский.В обоих этих стилях кирпичные поверхности являются элементом, позволяющим обогатить интерьер минимальными средствами – его фактурой. В то же время цвет пытаются убрать, не перегружая зрительное восприятие. Отличное решение в таких случаях – покраска готовой кладки в белый цвет.
На фото стена из кирпича покрашенная в белый цвет. Проект от Aiya Lisova Design «Дизайн-студия Loft 42 кв. м.»
Белый дополнительно дает эффект увеличения пространства, что актуально для тех случаев, когда площадь помещения небольшая.Кроме того, белая кирпичная стена может служить отличным фоном для демонстрации на ней элементов декоративной обстановки. Белую кирпичную стену можно сочетать в одном помещении с «традиционной» кладкой.
Серый кирпич в интерьере
Серый цвет, как и белый, считается нейтральным. Он создает спокойный фон для демонстрации предметов мебели и декоративных элементов дизайна. В зависимости от насыщенности серый цвет может играть в комнате разную роль.
Светло-серый расширит пространство и немного приглушит яркость, в этот цвет уместно окрашивать кирпичную кладку в слишком ярко освещенных помещениях. Темно-серый придаст камере и интимности, создаст умиротворяющую атмосферу, хотя визуально превратится в объем.
Как правило, «красными» называют оттенки рядового кирпича, произведенного из глины. Хотя ничто не мешает покрасить кладку в красный цвет, если требуется дизайнерская задумка.Стены из красного кирпича уместны практически во всех стилях, включая готику и классику. Как правило, они сразу привлекают к себе внимание и становятся главным декоративным элементом интерьера.
На фото красный кирпич в интерьере мансардной студии в стиле Лофт.
В дополнительных украшениях стены из красного кирпича больше не нуждаются. Следует иметь в виду, что некоторые предметы мебели могут и «потеряться» на их фоне, например, стол простой формы из близкого по тону дерева может быть почти испорчен.
Кирпич в интерьере комнаты: В каких помещениях уместен
Элементы кирпичной кладки можно вводить в помещение любого назначения, начиная от входной зоны и заканчивая ванной или туалетной комнатой. Главное подобрать тот вариант, который будет идеально сочетаться с мебелью и остальной отделкой.
Приход
Здесь отделить входную зону от остальной поможет кирпичная кладка или богатая кирпичная фактура на стенах, или отдельная кирпичная перегородка, если позволяет площадь.Можно сделать каменный участок стены в прихожей, обустроенный под вешалку для одежды, тем самым выделив ее в отдельную зону. Очевидец смотрит возле кирпичной стены стола-консоли в поисках перчаток и прочих мелочей, над которыми нависает большое зеркало.
На фото кирпичная стена в коридоре Интерьер студии 56 кв. м.
Кухня
Чаще всего на кухне кирпичная кладка служит «фартуком» возле рабочей поверхности.Здесь используется, как правило, декоративный кирпич, обладающий особыми характеристиками и гладкой поверхностью, облегчающей уборку.
Также на кухне можно выделить каменной кладкой обеденную зону, барную стойку, стол-остров.
На фото барная стойка, отделанная красным кирпичом. Проект от Litvinov Design «Стиль лофт в интерьере компактной студии».
Гостиная
Кирпичная перегородка позволяет отделить зону гостиной от остальной части квартиры свободной планировки.Кроме того, фальш-колонны обкладывают кирпичом, выкладывают стену возле камина. Кладка также отличается диванной или ТВ-зоной.
На фото белый кирпич в интерьере гостиной. Проект: «Дизайн двухкомнатной хрущевки 45 кв.м.»
Спальня
Здесь кирпич чаще всего используют для отделки стенок изголовья кровати, подчеркивая фактурой ее особую значимость в интерьере.Еще один популярный вариант – подчеркнуть кирпичную стену окном. В маленьких комнатах под кирпич лучше отдавать всю стену целиком, а только ее часть, чтобы не потерять восприятие пространства.
На фото Красный кирпич в интерьере спальни. Проект: «Дизайн квартиры в белых тонах площадью 90 кв. м.»
На фото белый кирпич в интерьере спальни в стиле модерн.Проект: «Дизайн квартиры в светлых тонах от Hola Design»
Сантехнические помещения
В ванных и туалетах также можно использовать кирпич – ограничений нет, материал выдерживает и температуру, и влажность. Кирпичная кладка выделяется различными зонами в помещении, либо разделяется их перегородками.
На фото плитка под белый кирпич в интерьере ванной комнаты.Проект: «Стиль лофт в интерьере квартиры 85 кв. м.»
Кроме того, большие квартиры и частные дома можно удачно дополнить кирпичными арками или поставить кирпичные стены возле лестничных клеток и площадок.
Кирпичная отделка в интерьере квартир: фото
Двухкомнатная квартира 57 кв. м.
В оформлении стены в гостиной, кухне, спальне, а также барной стойки, отделяющей гостиную от кухни, выполнены из декоративного «состаренного» кирпича.
Студия 25 кв. м.
Во избежание больших затрат на ремонт студии стены покрасили краской, а мебель приобрели в Икеа. Для усиления декоративности стены возле дивана и кровати очистили от кирпичной кладки и покрасили в белый цвет.
Двухуровневая квартира 82 кв. м.
Дизайн выполнен в стиле Лофт, вместо натурального кирпича использован декоративный, но натуральный цвет.Чтобы не перегружать интерьер, частично покрасили стены.
Двухкомнатная квартира 40 кв. м.
После выполнения реставрационных работ стены из старого кирпича были на вид. Это основной интерьер в стиле Лофт.
Белые кирпичные стены служат отличным фоном для уютного уголка отдыха.
Двухкомнатная квартира 114 кв. м.
Создать брутальный интерьер Дизайнерам помогли отделочные материалы – натуральные деревянные доски на полу, кирпичные стены из красного кирпича и деревянная мебель.
Трехкомнатная квартира 155 кв. м.
Оригинальный дизайн квартиры выполнен в светлых тонах. В отделке стен используются кирпичная кладка, роспись, обои, мозаика и даже зелень живых растений. Сочетание цветов и фактур подобрано так, чтобы все это разнообразие идеально сочеталось и образовывало гармоничный и уютный интерьер.
К моде последних десятилетий добавился еще один тренд на интерьер из натуральных материалов.Наряду с необработанным деревом, соломенными и бамбуковыми напольными покрытиями и живыми живыми изгородями, в современных квартирах и домах стала появляться кирпичная стена – один из самых эффектных и смелых приемов в дизайне интерьера.
Десять лет назад считалось, что стены должны быть без рельефа, а любая неровность воспринималась как дефект, от которого необходимо избавляться. Но благодаря многочисленным дизайнерским решениям, опубликованным в печати и в Интернете, владельцам жилого помещения при ремонте помещения все чаще приходит мысль оставить кирпичную кладку на стене.
Необработанная кирпичная стена появилась в жилых помещениях благодаря стилю Лофт, зародившемуся в 40-х годах прошлого века в Нью-Йорке, когда бедная американская молодежь стала заселять здания старых заводов.
Тогда дорогая аренда вывела в дачную зону промышленные предприятия, а пустующие просторные помещения переоборудовали под жилые. Эти постройки привлекали богемную молодежь – простор, отсутствие перегородок, обилие света и воздуха давали свободу и располагали к творчеству.
А так как материальных возможностей произвести отделку помещений не было, стен не было, то стены оставляли в «первозданном», то есть унаследованном заводом виде: Обычно это был грубый некрашеный кирпич или кирпич побелки стена.
Впрочем, это не только особенность стиля Лофт. Он давно используется в отделке жилых помещений, выполненных в английском стиле, а также в многочисленных этнических стилях, таких как прованс и кантри.
Без него сложно представить собор или замок, то есть готический и рыцарский стили, а многочисленные помещения с кирпичной кладкой всегда воспринимались нами как нечто само собой разумеющееся.Такой интерьер придает особое очарование парижскому чердаку или мастерской художника, театральной гримерке, бару или ночному клубу, помещения которых имитируют гаражи или фабричные мастерские.
В каждом интерьере стена отделяется по-разному: искусственно состаренный кирпич, покрытый лаком или окрашенный глянцевой или матовой краской, а часто просто покрытый белой штукатуркой.
Как сделать кирпичную стену в «сталинке» или «хрущевке»
Не так часто в последние десятилетия строят многоэтажные кирпичные дома – панельное домостроение намного быстрее и дешевле.Но если вы владеете квартирой в старинном кирпичном доме, квартирой с полувековой историей и неповторимой атмосферой, то ввести кирпичную стену для разнообразия интерьера не составит труда ни вам, ни строителям. От этого ваше жилье и кошелек только выиграют.
Дело в том, что ремонт в старых домах обходится непосевно, так как на старые неровные стены нужны сотни килограммов штукатурки. В этом случае натуральная стена из кирпича сэкономит бюджет и при этом просто украсит квартиру.
Старую штукатурку все равно придется считать самим кирпичом. Если голая стена не в очень хорошем состоянии, то сколы и трещины зашпаклевывают, а швы между кирпичами наносят специальной затиркой. Затем необходимо нанести на кирпичную стену грунтовку, чтобы пыль не спала, и только после этого приступать к окончательной отделке стен.
На сильно поврежденный кирпич потребуется нанести небольшое количество штукатурки, чтобы кирпичи выглядели гладкими, но сохранили цвет и рельеф стен.Если внешний вид получившейся стены вас устраивает, оставьте стену максимально естественной, в противном случае воспользуйтесь одним из способов отделки кладки – покраской или матовым лаком.
Декоративный кирпич в интерьере
С кирпичными домами все понятно, но что делать тем, кто хочет обзавестись кирпичной стеной, Живя в некирпичном доме? Выход давно найден и предлагается дизайнерами и строительными магазинами: можно сделать стену или стены декоративным клинкерным кирпичом.
Клинкерный кирпич выпускается самый разнообразный: гладкий новый, с эффектом обжига, в стиле кантри или прованс, состаренный или в виде обычной стены.Цветовая гамма такого кирпича и нити к нему также очень разнообразны – от темных и коричневых оттенков до почти белого.
Чтобы не уменьшать размер комнаты, для отделки стены можно использовать тонкий кирпич или плитку, имитирующую кирпич. Также возможны вариации с межкорпусными швами, которые могут быть узкими или широкими, заполненными контрастной затиркой или затиркой в тон – существует множество дизайнерских приемов для придания интерьеру исключительной неповторимости.
Недостаток такого вида отделки только один – высокая стоимость плитки.И укладывается искусственный кирпич так же, как и обычная керамическая плитка: По заранее начерченным линиям, на обычный клей для плитки.
Интерьер с кирпичной стеной
Почти не встречается интерьеров, в которых все стены покрыты кирпичной кладкой, неважно искусственной или натуральной. Кирпичами облицовывают одну стену, часть стены, нишу или пространство вокруг камина.
Кирпичная стена сама по себе является дизайнерским предметом интерьера, который уже не нужно декорировать.Вам не нужны полки для безделушек, картин, фотографий или часов – брутальная стенка и без них будет смотреться очень эффектно и стильно. В этом его явное преимущество.
Сначала кирпичные стены из лофтов, освоенные богемной прослойкой молодежи, перекочевали в холлы и гостиные престижного элитного жилья, а затем прибыли в спальни и кабинеты.
На изображенных фотографиях это дизайнерское решение встречается в самых разных комнатах дома, уже служащее фактурным фоном для бунлетной атмосферы лофов, но своеобразным признаком принадлежности хозяина к определенным слоям общества.
Кирпичная кладка в интерьере – это отказ от банального и вечного, стремление уйти от стандартных бетонных коробок, прикоснуться к чему-то естественному и настоящему. Жилое помещение с голой кирпичной стеной обладает индивидуальностью, неформальностью, выбивающей из типового и скучной.
Кладка сохраняет свой вид десятилетиями, этот материал экологически чистый и гигиеничный, исключает возникновение грибка или плесени. Он как бы подчеркивает стремление владельца сохранить первозданный вид.окружающий. Часто стену покрывают лаком или краской, благодаря чему можно придать ей любой цвет и изменить даже фактуру. Хорошо для этого подходит краска марки Белинк, она не дорогая и качественная. Главное не нарваться на подделку.
Экологичные интерьеры и этнические стили не обходятся без кирпичных стен в оформлении жилья. Отличительной особенностью такой кладки будет ее максимально натуралистичный вид – белый, в пастельных тонах, нежный, как сама природа.Белая кирпичная стена в интерьере смотрится не лучше в окружении деревянных срубов и балок, среди плетеной мебели и сухих букетов.
Однако нередко с помощью кирпичной кладки создают и прямо противоположный эффект: добиваются сочного цветового контраста. Грубая грубость и стена из крашеного многокатерного кирпича смягчаются пушистым однотонным ковром и мягкой велюровой мебелью – такой дизайн гостиной надолго остается в памяти.
Светлая кирпичная кладка никогда не привнесет в помещение холодной готики и мрачности, наоборот, она способна создать солнечное настроение и оживить пространство.Белый кирпич прекрасно сочетается с любым видом дизайна и, дополненный необходимыми аксессуарами, выглядит очень благородно.
Черный матовый кирпич внесет сдержанность и стильность, а произведения искусства и аксессуары на его фоне только выиграют, поэтому эту стену лучше не оставлять пустой. Светло-серая мебель и нейтральный мягкий текстиль согревают властный интерьер с черной стеной.
Фрагменты сложного кирпича, окрашенные в бирюзовый и песочный цвета, создают легкую непринужденную атмосферу нестандартности, выбивая из стройных ровных рядов основной кладки.Такая стена уже не выглядит безликим фоном для чего-то более важного, она сама по себе важна и интересна. Кирпичная цветотерапия может привести к тону и создать нужное настроение.
Примечания
Будь то воссоздание стиля творческой интеллигенции или демонстрация любви к природному и исторически незыблемому, в любом случае наличие кирпичной стены сделает атмосферу в доме нестандартной.
Используйте кирпичную стену для расстановки нужных акцентов, и комната заиграет совершенно по-новому, ведь кирпич — это не просто модный элемент декора интерьера, это нечто большее.
Если вы задумали кардинально преобразить свой интерьер, сделать его стильным, современным и одновременно уютным, используйте — декоративный кирпич для внутренней отделки лучший способ представить себе задуманную реальность. Наверное, нет ничего прекраснее и изысканнее, чем наличие в доме натурального материала, радующего глаз.
Отделка стен декоративным кирпичом
Сегодня кирпичная кладка применяется практически повсеместно. Может использоваться при внутренней отделке частных домов, квартир, гостиниц, офисных и других помещений.
Относительно недорогая цена этого материала, при невероятной природной красоте, позволяет ему достойно конкурировать с натуральным природным камнем.
Изготовленный облицовочный кирпич Только из натуральных материалов, поэтому он абсолютно безопасен для человека. Внешний вид кирпича имеет множество различных фактур и цветовых оттенков, что позволяет использовать его в оформлении интерьеров различной стилевой тематики.
Кирпичная стена в различных стилях
Очень часто в качестве декора кирпичной стены используется стиль поп-арт, где характерно использование различных ярких цветов.
Оранжевый цвет – великолепное сочетание с кирпичной стеной
Современные стили дизайна: хай-тек и ар-деко, кантри и другие также часто используют в оформлении кирпичную кладку. Кирпичная кладка вносит в интерьер своеобразную изюминку, которая прекрасно гармонирует с другими материалами, такими как сталь и стекло.
Украсив стену кирпичом, вы сможете сделать ее красивым фоном для любимых картин или дорогих сердцу фотографий.Правильное освещение, грамотно подобранная мебель и элементы декора сделают интерьер еще более привлекательным и элегантным.
Кирпич в интерьере можно комбинировать с другими отделочными материалами, например, с имитацией натурального камня. Такое соседство уравновешивает общую форму помещения, придавая дизайну изысканность и умиротворяющую атмосферу.
Отличное дизайнерское решение (от Meritage Homes) — Зона отдыха, обустроенная кирпичной стеной
Кирпичная стена не должна иметь холодный и строгий вид.Разбавляйте его различными украшениями или меняйте цвета, так вы добьетесь сногсшибательного результата.
В последнее время модным трендом считается оформление стен белым кирпичом, который разбавлен яркими цветами. Этот цвет подходит для оформления интерьера. скандинавский стиль, который подразумевает спокойствие и выразительность.
Кирпич в интерьере — в каких местах лучше использовать
Однозначного ответа на этот вопрос нет, так как на этот счет мнения разделились.Одни утверждают, что лучше всего использовать кирпич на кухне и в гостиной, другие считают наоборот и настаивают на уместности его использования в жилых помещениях.
Однако хотелось бы отметить следующее. Если взять для своего внимания характеристики декоративного кирпича, то область его применения намного шире, чем кухня, гостиная и спальня. Его с таким же успехом можно использовать для зажима стен в коридоре, прихожей, ванной.
Художественно-эстетические возможности кирпича в интерьере практически безграничны.Они могут преобладать над поверхностью любого оттенка и фактуры.
Один из ярких примеров, который, пожалуй, является флагманом данного вида материала – искусственно состаренный кирпич. Его главной особенностью можно считать отсутствие необходимости финишной отделки стен после его нанесения.
Облицовочный кирпич сам по себе довольно хрупкий материал, поэтому работать с ним нужно с особой осторожностью, соблюдая технологию. Универсальность продукта позволяет возводить стены практически с любой поверхностью от гипсокартона до силикатных блоков.
Свойства кирпича для внутренней отделки
Этот материал имеет отличные показатели такие как:
- Долговечность — срок службы не менее 50 лет, при этом внешняя привлекательность остается неизменной;
- Хорошая теплоизоляция – значительно снижает потери тепла в доме;
- Стойкость к истиранию – небольшие механические воздействия не повлияют на внешний вид кирпича;
- Водонепроницаемость является дополнительным материалом, защитит кирпич от влаги.В таком состоянии его можно периодически очищать мыльным раствором;
- Экология – в состав таких кирпичей входят натуральные компоненты, абсолютно безвредные для человека.
Кирпич отделочный — отделочный материал, которому приходится конкурировать с другими товарами, такими как или . Поэтому с каждым годом его физические и внешние характеристики становятся все лучше и лучше.
Декоративный кирпич на кухне
Облицовка стен кирпичом очень часто встречается на кухне.Ей декорируют либо всю стену целиком, либо частично над рабочей зоной, предварительно покрыв материал влагозащитной пропиткой. Такое дизайнерское решение почти всегда оправдывает себя, так как положительных отзывов людей, попробовавших этот эксперимент, огромное количество.
Цветовые тона столовой мебели могут быть продублированы различными элементами декора на стене, так вы добьетесь эффекта сглаживания рисунка, в котором не будет четких границ.
Декоративный кирпич в гостиной
Еще одно любимое место, где дизайнеры любят проявлять свои таланты, — это гостиная. Эта комната – визитная карточка любого дома или квартиры, поэтому допустить здесь нельзя, все должно выглядеть безупречно и эстетично.
Не бойтесь экспериментировать, добавляйте в интерьер ярких красок, чтобы атмосфера праздника не покидала вас никогда. Используйте для этого все возможные способы: ткани, люстры, картины, мебель и другие элементы декора.
Отбор лучших дизайн-проектов
Специально для вас мы подобрали готовые работы, которые уже украшают жилище своих владельцев. Просмотрев их, вы сможете взять себе, что-то на заметку или даже с точностью повторить увиденное, только дома.
Использование декоративного кирпича – верный шаг к созданию красивого, безупречного и выразительного дизайна вашего дома. Играйте с контрастом и декором, пока не поймете, что это ваше.Работа у вас не осталась без внимания ваших близких и гостей.
Успехов вам в ваших начинаниях и помните, что только кропотливый труд принесет желаемый результат.
Ремонт квартиры 41 кв.м. Современный дизайн однокомнатной квартиры с перепланировкой. Дизайн маленькой однокомнатной квартиры
Продуманная планировка однокомнатной квартиры 40 кв.способны сделать жилое пространство максимально функциональным и комфортным. В отличие от скромных хрущевок, такие однушки подлежат переоборудованию, что позволяет создать хорошие жилые площади и даже сделать из одной комнаты две (например, гостиную и детскую или спальню и небольшой кабинет). В этом обзоре мы хотим рассказать о том, какой может быть планировка одной квартиры соответствующей площади. Читайте — идеальная планировка однокомнатной квартиры 45 кв, 43 или 40 кв
Задачи реализации планировки однокомнатной квартиры площадью 40 кв.
Когда речь идет о небольшой однокомнатной квартире, особенно остро стоит вопрос разработки ее дизайна. Почему? Ведь его создание – это не пустой звук или дань моде, а залог вашей комфортной жизни в будущем. Красивая, продуманная до мелочей планировка однокомнатной квартиры 40 кв сделает дом уютным и просторным и наоборот, хаотичный дизайн не даст возможности использовать имеющееся пространство с пользой, а значит что места будет катастрофически не хватать.
Хорошие дизайнеры интерьеров знают множество способов скрыть недостатки и раздвинуть границы, даже если это чисто визуально. Благодаря профессиональной планировке однокомнатной квартиры 40 кв.м. Так как продуманная планировка однокомнатной квартиры 40 кв.м. способствует правильному зонированию пространства, предполагает использование эргономичной мебели и максимальное использование ниш, все будет на своих местах, при этом свободного места будет достаточно для комфортной жизни.
Основные принципы проектирования
Грамотная планировка однокомнатной квартиры 40 кв.решает сразу много задач и проблем. Почему? Потому что 40 квадратов – это не маленькая площадь, и с ней можно «поиграть». Обычно в таких комнатах предусмотрены просторные кухни и отдельные санузлы. Что касается стиля оформления, то он может быть любым – от классики или минимализма до модного сегодня ретро или даже броского поп-арта.
Спальня или гостиная?
Планировки однокомнатных квартир 40 кв.м выполняются в разных вариантах. Для какой комнаты вы хотели бы выделить большую часть жилплощади, нужно определиться сразу.Если вы любите гостей и предпочитаете активный образ жизни, остановитесь на гостиной. Интересные планировки однокомнатных квартир получаются со спальными зонами – это отличный вариант для людей, предпочитающих размеренный отдых. В любом случае, отведите уголок под письменный стол. Планировка 1-комнатных квартир 40 кв.м. часто предполагает наличие кабинета – если вы сможете выделить под него хотя бы пять квадратов, у вас будет то, что вам нужно.
Такие разные кухни
Выполняя планировки однокомнатных квартир площадью 40 квадратных метров, особое внимание дизайнеры уделяют обустройству кухонного пространства.Кухня может быть отдельной или оформлена как студия – она совмещена с гостиной или спальной зоной. Если у вас часто бывают гости, и с ночевкой, сделайте кухню-студию с диваном, а свою комнату оформите в виде спальни.
Особенности планировки однокомнатной квартиры для семьи, или Две комнаты вместо одной
Идеальная планировка однокомнатной квартиры для семьи предполагает наличие двух комнат – например, детской и спальни для взрослых. В исполнении он не самый удобный, но позволяет обеспечить каждому домочадцу свой «уголок».
Планировка однокомнатной квартиры для семьи в данном случае предполагает снос стен – крохотную квартиру, разделенную на небольшие комнаты, можно превратить в студию. Этот вариант хорош для семей с одним маленьким ребенком. Еще одно решение – совместить кухню со спальней, а под детскую выделить пространство 5–6 метров.
Планировка однокомнатных квартир для семьи с ребенком
Планировка однокомнатной квартиры для семьи с ребенком в идеале должна предполагать наличие двух жилых зон – для родителей и для малыша.Для этого:
- Сделана крохотная, но отдельная детская.
- В общей комнате есть место для ребенка.
- Кухня отделена от жилого помещения, родители и ребенок живут в одной просторной комнате.
Планировка однокомнатной квартиры для семьи с ребенком, предполагающая обустройство отдельной детской – оптимальный вариант. Даже небольшую комнату можно функционально обставить с помощью эргономичной мебели, а когда малыш подрастет, он не будет мешать родителям, и наоборот.При планировке однокомнатной квартиры для семьи с одним ребенком предполагается использование двухъярусных детских мебельных комплексов (на первом столе или игровом комплексе, на втором спальном месте), угловых шкафов.
Нужна удачная планировка однокомнатной квартиры для семьи с ребенком? Посмотрите примеры готовых проектов в интернете, чтобы получить интересные идеи, а еще лучше – обратитесь к профессиональному дизайнеру.
Планировка однокомнатной квартиры с двумя детьми
Планировка однокомнатной квартиры с двумя детьми выполняется практически так же, как и планировка однокомнатной квартиры с ребенком.Отличие в том, что малышей двое, а места в детской зоне должно быть больше. На помощь приходит все та же эргономичная функциональная мебель вроде комбинированных столов и шкафов, двухъярусных кроватей. Планировка однокомнатной квартиры с двумя детьми обязательно должна осуществляться с учетом разницы в возрасте – ведь одно дело оборудовать гостиную для девочки-погодки или детей с небольшой разницей, а другое – для подростка и маленький ребенок. В этом случае родителям имеет смысл выделить подростку отдельный уголок, а малыша взять к себе.
Проекты с фотографиями
Планировка однокомнатной квартиры для семьи с ребенком может быть почти идеальной и позволит превратить даже очень ограниченную жилплощадь в просторную квартиру. Не знаете как? Просто посмотрите планировки однокомнатных квартир на фото, чтобы почерпнуть интересные идеи. Планировка однокомнатной квартиры с ребенком, двумя детьми и для семьи без малышей, одного человека, студента, женщины или мужчины в возрасте может быть выполнена в любом стиле и предполагать использование различных элементов дизайна.
Что делать с ванной?
Планировка однокомнатной квартиры 40 кв.м может предполагать как достаточно просторный санузел, так и минималистичный санузел. В целом при планировке однокомнатных квартир площадью 40 кв.м и санузлов в них можно руководствоваться двумя схемами:
- Первая отдельная ванная комната. В этом случае туалет и ванная разделены стеной и являются отдельными помещениями. Плюс отдельного санузла описывать не нужно, этот вариант предпочтительнее для семьи из нескольких человек.Что поделаешь при планировке санузла в однокомнатной квартире 40 кв.м в этом случае это максимально эффективное использование площади санузла. Как? Использование минимума мебели, вешание на стены вместительных шкафов, замена ванны на душевую кабину (если помещение небольшое и в нем стоит стиральная машина, для нормальной ванны может просто не остаться места).
- Вторая схема совмещенный санузел. При планировке стандартной однокомнатной квартиры 40 кв.м ее используют чаще, поскольку она экономит пространство.В цельнолитой ванной можно установить и хорошую ванну, и необходимую мебель, и стиральную машину, поэтому многие владельцы просторных одноместных комнат отдают предпочтение именно этому варианту.
Обе планировки однокомнатных квартир по 40 кв.м одинаково функциональны. Что выбрать – решайте сами, учитывая текущие запросы и личные предпочтения.
Особенности планировки однокомнатной квартиры 41 кв
Планировка однокомнатной квартиры 41 кв.производится так же, как и планировка однокомнатной квартиры 40 кв.м. Есть ли особенности? Они будут такими же, как и для всех однушек в рассматриваемом районе. Чтобы планировка однокомнатной квартиры 41 кв была функциональной и устраивала вас на все 100%, рассмотрите возможность сноса стен, выделения отдельных функциональных зон, объединения или, наоборот, разделения санузла.
Планировки однокомнатных квартир 42 кв
Планировка однокомнатной квартиры 42 кв.выполняется так же, как и планировка однокомнатной квартиры 40 кв.м. Выделите кабинет или небольшую детскую, сделайте спальню или гостиную основной комнатой – как вам больше нравится. Два метра – хоть и небольшой, но все же выигрыш, поэтому планировка однокомнатной квартиры 42 кв дает определенный простор для творчества.
Основные варианты планировки однокомнатной квартиры 42 кв.м.:
- Студия представляет собой отдельное помещение или открытое пространство.
- Объединение спальни или гостиной с кухней и обустройство отдельной небольшой комнаты (спальни, кабинета, детской или гардеробной).
- Создание небольшой отдельной кухоньки и полноценной гостиной.
Рассмотренные варианты планировки однокомнатной квартиры 42 кв.м подходят для семейной пары, семьи с детьми и тех людей, которые живут самостоятельно.
Планировки однокомнатных квартир 43 кв.м. также дают определенный полет для творчества. Планировка однокомнатной квартиры 43 кв.м может предполагать создание одной или двух комнат, разделение или объединение санузла, просторной или очень скромной кухонной зоны.Главное помнить, что лучшая планировка однокомнатной квартиры 43 кв.м – это та, которая соответствует потребностям вашей семьи.
Дизайн-планировка однокомнатной квартиры 44 кв
Планировка однокомнатной квартиры 44 кв.м может быть выполнена со сносом стен или без демонтажных работ. Каковы его основные особенности? Планировка однокомнатной квартиры 44 кв.м может предполагать создание отдельных функциональных зон или единого жилого помещения. Первый вариант удобен для семей, где каждому нужен свой уголок, а второй – для людей, живущих отдельно.
Планировка однокомнатной квартиры 45 кв
5 дополнительных площадей по сравнению со стандартной площадью 40 м. — ваша возможность сделать дополнительную комнату (пусть и небольшую), гардеробную или кладовку для хранения вещей. Так же как и планировка однокомнатной квартиры 40 кв м, планировка площади 45 кв должна быть выполнена грамотно.
Купить дизайн
Красивая планировка однокомнатной квартиры 40 кв.м. (планирование в данном случае осуществляется с учетом пожеланий заказчика, современных тенденций в мире дизайна и особенностей конкретного объекта) — это правильное вложение.Экономя сегодня на своем комфорте, вы идете на сомнительный компромисс — да, хороший проект стоит недешево, но радовать вас он будет долго.
Интересные планировки однокомнатных квартир можно найти в любом специализированном каталоге профильного сайта или заказать их создание в индивидуальном порядке. Готовый проект должен включать в себя чертежи с планировкой, файл со списком мебели, материалов, галерею изображений конечного результата (в формате 3D). Лучшие планировки однокомнатных квартир можно просто позаимствовать в том виде, в котором они есть, или видоизменить по собственным запросам.Для каждой комнаты целесообразно подбирать отдельный дизайн – благо, идей много, да и возможностей для их воплощения тоже. Желательно покупать проект у проверенных компаний, готовых гарантировать техническую «жизнеспособность» каждого предложенного решения.
Хотите, чтобы планировка однокомнатной квартиры была 45 кв.м или идеальная была отдельная планировка комнаты в однокомнатной? Свяжитесь со специалистами. И обязательно ознакомьтесь с лучшими планировками однокомнатных квартир — в Интернете или в специализированных изданиях.
Вам понравился тот или иной проект? Договоритесь о возможности его реализации конкретно в вашем случае и реализуйте. Ваш комфорт в ваших руках.
В дизайне однокомнатной квартиры удачно использована современная концепция разделения единого пространства на целевые зоны . Эта тенденция позволяет рационально, без потери площади распределить функциональные зоны квартиры, создавая, в то же время единый ансамбль всех составных частей.
Прихожая однокомнатной квартиры выполнена в светлых, кремовых тонах, оборудована современным потолочным освещением с четырьмя розетками. Прихожая оборудована большим, вместительным шкафом, размеры которого полностью перекрывают правую стену. Двери шкафа-купе изготовлены из высококачественного зеркала, исключающего искажение отражения.
Ванная комната в квартире выполнена в светлых бело-кремовых тонах, с применением декоративных элементов.Гардеробная оборудована современными видами сантехники исключительного белого цвета, гармонирующего с цветовой гаммой плитки. Четыре точки потолочного освещения обеспечивают достаточный световой режим для ванной комнаты. Санузел отделен от общего пространства высокопрочным прозрачным пластиком, полностью исключающим попадание воды на плоскость пола при использовании душа. Ванная комната оборудована смесителями последних моделей, простыми в использовании и обслуживании.
Рационально распределенное пространство ванной и туалетной комнаты позволило установить в ней стиральную машину, органично вписавшуюся под туалетный столик.
Планировка помещения. Разделение на зоны
- Ниша для сна;
- Сиденье;
- Рабочая зона;
- Кухонный блок.
Цветовая гамма интерьера номера выполнена в теплых кремовых тонах, с добавлением темно-коричневого.Сочетание выбранных цветов очень органично и создает атмосферу уюта, тепла и покоя.
Спальная ниша устроена в основной зоне комнаты, отделена короткой перегородкой шириной с кровать, имеет встроенную карнизную систему, на которую крепятся легкие полупрозрачные шторы, отделяющие спальную нишу от основная площадь комнаты. Спальная зона имеет отдельный потолочный светильник на шесть розеток, а также дополнительный, ночник, вмонтированный в небольшую декоративную нишу в стене.
Пространство кухонного блока, за счет компактной мебели, удобно расположенной в функциональном отсеке, вмещает всю необходимую технику. Удобные тумбы, как напольные, так и подвесные, вмещают всю необходимую кухонную утварь, что позволяет максимально разгрузить рабочие поверхности.
Обеденный стол, расположенный между пространствами кухонного блока и гостиной, органично объединяет обе зоны комнаты, создавая единство общего пространства.
Удобный, функциональный угловой диван-трансформер позволяет максимально освободить пространство гостиной, что необходимо для приема гостей. Маленькая компактная мебель для гостиной расставляется таким образом, чтобы центральная часть комнаты была свободна от лишнего беспорядка. Угловая конструкция дивана позволила создать в комнате дополнительный, рабочий отсек, расположенный ближе к окну.
Освещение в кухонном блоке и зоне гостиной решено за счет современных светодиодных люстр аналогичного дизайна, а также дополнительного подвесного освещения в рабочей зоне.
Дизайн интерьера этой однокомнатной квартиры идеально подойдет для молодой семьи, а также для прогрессивных представителей современной молодежи (как парней, так и девушек), живущих самостоятельно.
Но хозяева хотели иметь отдельную спальню, которую бы не было слышно от шума из гостиной. Поэтому часть, в которой размещалась кровать, была отделена от остальной комнаты стеклянной панелью. Поскольку собственники — молодые люди, дизайнер постарался излишне не обременять бюджет.
Стиль
Дизайн современной малогабаритной квартиры выдержан в лаконичном стиле и сочетает в себе элементы минимализма и хай-тека. Балансируя на тонкой грани между этими двумя популярными стилями, удалось получить свежий, прозрачный интерьер, не перегруженный декоративными деталями, но в то же время лишенный присущей современным стилям холодности. В качестве основной палитры дизайнер остановился на оттенках грозового неба, а в качестве цветовых акцентов добавил к ним голубые и желтые тона.
Материалы для отделки
Покраска стен – самый экономичный вариант отделки, хорошо согласующийся с общей дизайнерской концепцией квартиры 41 кв.м. В жилой части квартиры в качестве напольного покрытия используется паркет, с теплой фактурой дерева и бежевыми оттенками, смягчающими холодность серо-голубой гаммы.
Зона возле кухонной рабочей поверхности не облицована плиткой, а оставлена бетонной – так в интерьере появляется нотка модного сегодня лофта.Сверху бетон покрыт стеклянной панелью, так что при уходе за таким «фартуком» не возникает проблем. Цвет бетона идеально вписывается в цветовую гамму дизайна современной малогабаритной квартиры.
Мебель
Простота, удобство, функциональность – вот три отличительные черты мебели, выбранной дизайнером для этого проекта. В его основе — бюджетные модели популярной шведской сети магазинов.В квартире нет прихожей, поэтому прямо при входе установили небольшой шкаф для одежды, в который убирается верхняя одежда, а также тумбу для хранения обуви.
Основная система хранения находится в спальне — занимает место от пола до потолка, и хранит не только белье и одежду, но и спортивный инвентарь, и те вещи, которые используются время от времени. В зоне гостиной появились полки, где можно хранить книги и предметы декора, а также тубус для белья.Дизайнер разместил систему стеллажей на балконе как дополнительное место для хранения.
Освещение
Равномерный свет заливает квартиру точечными светильниками, встроенными в потолок. Обеденная зона в дизайне квартиры 41 кв.м. выделяется тремя декоративными стеклянными плафонами разных цветов, свисающих с потолка, гармонирующими с общей палитрой интерьера. Они изготавливаются по дизайнерским эскизам и являются одним из основных декоративных элементов.Кроме того, торшер, бра и ночники в спальне обеспечивают рациональное освещение различных функциональных зон.
Декор
Помимо дизайнерских подвесов, текстиль также играет роль декора в дизайне небольшой современной квартиры. Это узорчатые подушки, прозрачные оконные шторы, покрывало. Все комнаты, включая ванную комнату, украшены художественными постерами в акцентных тонах. Небольшой домашний офис оживляется масляной живописью.
Квартира в скандинавском стиле площадью 41 кв. м умело скрывает недостатки и изящно подчеркивает достоинства.
На фото:
Эта небольшая квартира не может похвастаться метражом, но это не убивает ощущение простора в ней. Его главный козырь – окна, выходящие на две стороны света и большая глубина. Он просвечивает и выглядит свободным и наполненным воздухом.
Информация об объекте:
Местонахождение: Гетерборг, Швеция
Год: 2012
Площадь: 41 кв.m
Архитекторы: Alvhem Mäkleri & Interiör
Эта квартира как зарплата в известной поговорке «маленькая, но хорошая». Дизайн интерьера малогабаритных квартир во многом зависит от пропорций помещения и от освещенности. Вот 41 кв. метр можно воспринимать совершенно по-разному в зависимости от этих параметров. Здесь они идеальны: в квартире 3 окна, выходящие на 2 стороны света, а ее пропорции чрезвычайно удобны. На самом деле дизайнерам, а интерьер разработала шведская декораторско-брокерская компания Alvhem Mäkleri & Interiör, оставалось лишь грамотно оформить удачный объект, чтобы подчеркнуть достоинства и визуально исправить недостатки, в частности, еще скромный метраж. .Квартира выдержана в классическом скандинавском стиле: почти все поверхности и мебель белоснежного цвета, вся техника и предметы обстановки просты и функциональны, при этом удивительно уютны благодаря мелким деталям и нежным цветовым акцентам.
Большое помещение дизайнеры решили отдать под спальню, совмещенную с гостиной, а маленькое под кухню. Можно было бы совместить кухню с гостиной, а спальню сделать более приватной, но при этом потерялась бы прозрачность квартиры – открытая с обеих сторон.На плане нарисован балкон, а на самом деле его нет.
Приятная особенность квартиры в том, что вход в нее расположен в центре и прямо напротив санузла, что очень удобно. Справа кухня…
… налево гостиная и спальня, залитые светом из двух больших окон. Одна из стен прихожей окрашена в контрастный серый цвет; коврик и подушка подобраны к нему. И это отличный ход: он и строгий, и практичный, и не однообразный – ведь входная зона не имеет права быть совсем уж скучной, ведь именно она производит первое впечатление на посетителей.
Гостиная, совмещенная со спальней, довольно небольшая по площади, но отсутствие лишних метров компенсируется обилием света, что особенно заметно в белоснежном скандинавском интерьере.
Лучшее место в квартире — у окна с видом на город: там диван для отдыха и приема гостей. Напротив нее хорошо вписался телевизор и книжные полки.
Площадь гостиной от 8 кв.метров, а за счет того, что спальня отделена лишь невысокой перегородкой – она выглядит намного просторнее.
Спальная зона тоже не может похвастаться своими размерами, но здесь есть кровать, тумбочка, море света и простора — идеальное сочетание. Кроме того, дверь ведет прямо из спальни в роскошную гардеробную, заменяющую собой все системы хранения — от платяного шкафа до комода.
Гардеробная огромная по меркам такой маленькой квартиры со всеми удобствами: от вешалок и полочек до удобного туалетного столика.
Кухня — единственное место, где дизайнеры изменили традиционный белый цвет стен. Его заменили голубые обои с тонким графическим цветочным узором.
Кухонная мебель предельно проста: белая и функциональная. Шкафы вдоль длинной стены
На короткой стене над разделочными поверхностями расположены открытые полки, которые визуально всегда делают всю кухонную мебель светлее.
У стены стоит стол со стульями, а за ним, присмотритесь — крохотный треугольный уголок, доставшийся дизайнерам от проектировщиков.Его первоначальное предназначение неизвестно, но сейчас сюда отлично вписался небольшой письменный стол.
Красивая и удобная деталь: тетива с прищепками. Вы можете повесить заметки, напоминания, фотографии и безделушки. Не такой громоздкий, как пробковая доска, которую часто вешают над письменным столом, но такой же функциональный.
Ванная комната предельно компактна, но ни сантиметра не потрачено впустую: над унитазом есть полочки для полотенец и бытовой химии.
Душ без поддона, со сливом в полу, совсем не занимает места.Стены серо-сиреневые, под стать основному акценту, выбранному в квартире – такого цвета и диван в гостиной, и мозаика на кухне. Все началось.
Комментарий в FB Комментарий к VK
Также в этом разделе
Интерьер квартиры площадью всего 21 кв.м выполнен в скандинавском стиле. По просьбе владельцев Виктория Бондарчук работала с существующей планировкой, стараясь максимально оптимизировать пространство.
Заказчики Мишель и Энди пришли в дизайн-бюро LAAB с длинным списком пожеланий и множеством планов относительно их крошечной квартирки в центре Гонконга.
Работая над дизайном маленькой квартиры в центре Лондона, дизайнеры пошли нестандартным путем – решили обыграть ее небольшие размеры. В результате получилось комфортное пространство в урбанистическом стиле.
Квартира кажущихся смешными размеров — всего 13 квадратов — вмещает все, что нужно активному горожанину.И при этом оставаясь на удивление просторным и функциональным.
Как обойтись без надоедливого дивана-кровати в однокомнатной квартире, оставить пространство незагроможденным и при этом иметь много мест для хранения вещей?
Три золотых правила, которые помогут избежать ошибок при оформлении малогабаритных квартир в современном стиле. Говорит архитектор Петр Федосеенко.
Квартиры на первом этаже продаются на 10-15 процентов дешевле, чем их аналоги с верхних этажей. Как превратить плохое расположение в достоинство? Разбираем самый интересный проект Натальи Олексиенко.
За счет объединения нескольких зон и использования светлой отделки на небольшой площади бывшей «двушки» создана просторная студия с живописным средиземноморским декором и необычными деталями отделки.
Чтобы из маленькой уютной квартиры сделать большую, недостаточно убрать перегородки. Как увеличить пространство, не теряя душевности – в проекте Аудроне Абразиене «Между деревьями».
Дизайнер Марина Саркисян играет не только с пространством, но и со временем: несмотря на то, что все комнаты компактной двухкомнатной квартиры оформлены в классическом стиле, время везде течет по-разному.
Чтобы превратить однокомнатную квартиру в двухкомнатную, нужно сначала сделать из нее студию. Минималистичный лофт в петербургском стиле — в проекте дизайнера Марии Василенко.
Молодоженам не позавидуешь — они до сих пор трутся друг о друга в условиях нашей квартиры: все углы и теснота. Чтобы было приятнее втираться, лучше убрать углы и увеличить пространство.
Как убрать несущую колонну в квартире, не трогая ее, и устроить изолированную спальню в студии — в проекте Ларисы Никитенко «Женский взгляд на мужской интерьер».
Любители природы положили жизнь на то, чтобы вырастить на подоконнике фикус с традесканцией, а озеленить дом можно было бы за день и забыть о поливе с подкормкой на долгие годы.
Рецепт объемной квартиры по-испански: нужно удалить из интерьера плоскости, бордюры, штампы и стереотипы, а затем выложить пол, стены, потолок и даже мебель керамической плиткой.
Как известно, цвет придает живость и яркость интерьеру.С этим согласен и дизайнер Александр Вошев. Только свои проекты он раскрашивает яркими красками не с помощью красок, а с помощью света.
Молодая пара решила поселиться в историческом центре города, но денег хватило только на миниатюрную квартиру без ванной: настоящий профессиональный вызов для архитектора и дизайнера.
В этом жилище профессионального джазового музыканта нашлось место не только всем зонам и необходимым в быту вещам, но и «излишествам»: настоящему камину, пианино и даже зрительской «трибуне».
Первоначальная планировка иногда бывает настолько неудачной, что архитектору нужно проявить недюжинную изобретательность, чтобы никто не вспомнил о неудачных пропорциях и скромных масштабах.
Кто бы мог подумать, что, практически не меняя планировки, эта трехкомнатная хрущевка будет выглядеть настолько просторной, что позавидует любой обитатель «больших размеров».
Приятного просмотра!
Дизайн маленькой однокомнатной квартиры
Эту квартиру разработал Денис Красиков, с работами которого мы обязательно познакомимся.Денису удалось спроектировать уютный интерьер в небольшой квартире площадью всего 41 кв.м. Войдя в квартиру, вы попадаете в прихожую с коридором, справа от которого находится санузел. Кухня расположена прямо на поле.
В этой однокомнатной квартире роль гостиной и спальни выполняет одна комната, но это нисколько не нарушает привлекательности интерьера. В этом помещении также есть рабочее место.Денис использовал почти всю мебель из ИКЕА.
Несмотря на скромное пространство, интерьер небольшой однокомнатной квартиры кажется таким уютным.
Графитовое покрытие можно получить специальными обоями или краской. Согласитесь, меловая доска всегда эффектно смотрится в современных интерьерах.
Классическая деревянная кухня в скандинавском стиле
Этот фартук придает динамичность светлой кухне.
Складывающиеся двери помогают сэкономить место на полу.
Для разделения зоны приготовления пищи и столовой дизайнер использовал разные напольные покрытия: плитку для кухни и паркет для столовой. Отсюда также есть выход на лоджию.
Деревянные столешницы натурального цвета придают интерьеру теплоты.
Дизайн ванной комнаты выполнен в стиле ретро. Подобрали унитаз с высоким сливным бачком, сам санузел на кривых ножках, сантехнику и даже такие вещи, как розетки.
Пол в стиле пэчворк идеально подходил для этой ванной комнаты. Кстати, коты на стене выполнены влагостойкой краской.
Нижняя часть стен отделана той же плиткой, что и на кухне.
Планировка малогабаритной однокомнатной квартиры
Дом Брежневка. Планировка квартиры на Брежневке
Брежневские квартиры широко известны в нашей стране. Почти в каждом крупном городе есть как минимум несколько десятков домов, построенных по стандартам того времени, которое выпадает на период правления известного политика.Всего в Советском Союзе были построены тысячи домов — по тщательно выверенному и утвержденному чертежу работали инженеры от Владивостока до Калининграда и от Мурманска до Ташкента.
Планировка типичной брежневской квартиры
Немного истории
Великая Отечественная война разрушила многие города, поэтому сразу в послевоенное время главной задачей было обеспечить людей хоть каким-то жильем. Люди даже соглашались на общежития и бараки. Проходит несколько лет, и каждый работающий человек хочет уже иметь свое, отдельное жилье.Так и появились стандартные пятиэтажки-хрущевки – достаточно тесные и не всегда благоустроенные квартиры, зато свои. Изначально их планировалось построить на относительно короткий срок — 20-30 лет, исключительно для того, чтобы временно разместить людей, прежде чем они смогут построить для каждого из них просторную и светлую квартиру. Увы, этому не суждено было сбыться.
Но спустя несколько лет люди захотели получить не только свои, но и более просторные квартиры. Кроме того, увеличился приток людей из деревень, где условия жизни были намного хуже, чем в городах.Поэтому со строительства пятиэтажек мы сразу перешли к строительству 8–9 и даже 12–16-этажных домов.
Именно они получили название «Брежневка», так как начали строиться в середине 60-х годов прошлого века.
Официально Брежневыми называют только квартиры в домах, построенных во времена правления Леонида Ильича. Но на самом деле план строительства, иногда слегка измененный, а иногда и без изменений, широко применялся вплоть до середины 90-х годов.И даже сегодня инженеры не забывают об этих разработках, часто применяя их при строительстве.
Особенности компоновки
Если хрущевки в большинстве случаев имели крайне небольшие размеры, то планировка брежневок была продумана намного лучше.
Появились не только 1,2 и 3-х комнатные квартиры, но и 4-х комнатные квартиры, предназначенные для больших семей.
Пример планировки четырехкомнатной брежневки
Значительно увеличена площадь жилья.Стандартными стали следующие размеры:
- 1-комнатная квартира — 22-31 кв.м;
- 2 комнатная квартира — 42-45 кв.м;
- 3 комнатная квартира — 48-56 кв.м. м;
- 4 комнатная квартира — 58-70 кв.м
Изменился внешний вид самих зданий. Как было сказано выше, они выросли с 5 этажей до 9 и даже до 16 — это позволило заселить большое количество людей с минимальными затратами.
Высотные дома были оборудованы мусоропроводами и лифтами, что сделало жизнь жителей намного приятнее и удобнее.
Пример планировки двухкомнатной брежневки
Серьезным плюсом можно назвать такую конструктивную особенность, как наличие большого количества изолированных комнат. То есть помещения, в которых не предусмотрена возможность сквозного прохода.
Поэтому можно с уверенностью сказать, что брежневка однозначно была улучшенной версией хрущевки.
Можно ли улучшить брежневку
Несмотря на все достоинства брежневки, многие устали от тех недостатков, которые не искоренены.И в первую очередь это небольшая площадь кухни. Все-таки 6-7 квадратных метров Это не тот показатель, о котором мечтают многие домохозяйки.
Поэтому часто даже люди, имеющие в своем распоряжении роскошную четырехкомнатную брежневку, всерьез задаются вопросом – можно ли ее сделать еще лучше?
Почти всегда можно сделать лучше. Но для этого следует быть максимально внимательным и осторожным. В общем, лучше всего доверить работу специалистам. Да, вы должны платить за их услуги.И платить много. Но они без труда могут получить план вашего дома, изучить его и составить оптимальный план работ, который гарантированно не нанесет вреда несущим конструкциям и не подвергнет риску вашу жизнь и жизнь ваших соседей.
простые небольшие варианты перепланировки кухни в брежневке, которые можно сделать своими руками
Дело в том, что в панельных брежневках почти все стены несущие. Поэтому затрагивать их во время ремонта не желательно, но если все-таки приходится, то делать это следует максимально аккуратно.Более того, в некоторых случаях можно обойтись и без него. Итак, какие есть варианты?
пример дизайна интерьера кухни, совмещенной с балконом
Если вы хотите визуально увеличить площадь кухни, но на кухне нет шкафов и балкона, а ваш не позволяет сделать вырез несколько лишних метров, чтобы пристроить их к кухне, можно сделать проем в стене, отделяющий кухню от комнаты.
Очень удобно функционально и в то же время позволяет сделать площадь обеих комнат визуально больше.
Иногда оправдан полный снос стены между кухней и комнатой. В результате вы получаете. Освобождается довольно много места.
Осталось только качественно зонировать комнату и кухню, разделив их цветом или использованными отделочными материалами.
Кухня остается кухней, гостиная — гостиной, а на их границе можно разместить столовую — о такой роскоши владельцы 1 комнатной квартиры в большинстве случаев могут только мечтать.
Кстати, еще один случай, который может вызвать дискомфорт у жителей Брежневки, — крайне маленькие размеры ванной комнаты. Да, санузел в большинстве брежневок раздельный. Но даже в 2-3 комнатных квартирах его площадь крайне мала. Иногда даже невозможно установить стиральную машину, что, конечно же, не нравится жильцам.
Единственный способ исправить это, который позволит планировка 2-х комнатной брежневки, это совместить санузел. Конечно, это может вызвать определенные трудности, особенно если в квартире проживает 3-4 человека.Но в результате вы получаете достаточно свободного места для установки необходимой техники, экономя место на кухне и одновременно делая жизнь более комфортной.
Совместный санузел пример
Иногда после объединения санузла оправдана его полная перепланировка – унитаз и ванная меняются местами или разворачиваются, чтобы максимально использовать имеющуюся площадь.
В общем, критически подойдя к дизайну квартиры, практически всегда можно сделать его оптимальным и подходящим именно вам.Иногда оправдан снос или перенос встроенных шкафов, снос перегородок. Тогда из любой можно создать настоящее произведение искусства.
Если вы решили делать ремонт в брежневке, то знайте, что по сравнению с хрущевкой у нее есть одно преимущество, делающее возможным несколько решений.
Вариант планировки квартиры в Брежневке
Планировка брежневской квартиры требует отдельного санузла. Трехкомнатные квартиры лучше всего поддаются перепланировке.Если вы хотите увеличить полезную площадь ванной и туалета, то лучшим решением будет снести перегородку. Единственным препятствием на пути может стать необходимость отдельного санузла, но если такой необходимости нет, то можно смело сносить стену. Еще один способ сделать планировку более удобной – перенести дверь, ведущую в санузел. Если сделать его из коридора, то он может стать и зеркалом.
Еще один вариант перепланировки трехкомнатной квартиры в Брежневке
Планировка брежневской квартиры по сравнению с хрущевкой считается более комфортной, однако при желании сделать перепланировку имеет смысл отделить зону приготовления пищи от зоны ресепшн.Для этого можно сделать небольшой подиум. Форму подиума можно повторить, используя многоуровневый потолок. Поскольку высота потолков в брежневке составляет примерно 2,7 м, потолки в несколько уровней не сильно повлияют на ощущение простора в помещении. Делая перепланировку на кухне, используйте стеклянные поверхности и светлые тона, это сделает помещение более свободным, а интерьер неповторимым.
Вариант перепланировки двухкомнатной брежневки
Планировки брежневки хоть и более благоустроенные, но все же не дотягивают до современных представлений об удобстве и функциональности.Поэтому при проведении работ необходимо, чтобы они соответствовали строительным нормам и Жилищному законодательству. Если вы уже придумали, какой должна быть перепланировка квартиры, то вам необходимо перед началом любых работ, разрешающих строительные работы, обратиться в специальную организацию и подкрепить ее планом перепланировки.
Советы по перепланировке двухкомнатной квартиры на Брежневке
Эскиз планировки брежневок будет выполнен на основании технического заключения, определяющего износ инженерных систем, строительных конструкций.Если состояние дома аварийное, то перепланировку можно усложнить. Сроки согласования будут зависеть от сложности работ, от того, будете ли вы затрагивать несущие стены, конструкции и сантехнические зоны. Как правило, сроки утверждения составляют от двух месяцев до полугода.
См. также советы архитекторов по планированию:
Планы этажей.
Однокомнатные квартиры.
Квартиры с одной спальней.
Трехкомнатные квартиры.
Хрущевский
Все слышали термин хрущевка, но не каждый может дать точную характеристику этому типу квартир. Попробуем разобраться вместе, для этого нужно окунуться в историю.
Еще в 1955 году, а именно 31 июля, Совет Министров СССР во главе с Хрущевым принял постановление «О развитии жилищного строительства в СССР», в связи с массовым дефицитом жилой площади. В результате этого был разработан проект Хрущевки, получивший свое название от участия генсека.Строительство началось в середине 50-х годов. Проектом технического решения был панельный или кирпичный дом в три, пять этажей с наличием высоких потолков (2,5 м), но без лифта и мусоропровода. Стиль таких домов был строгим, с отсутствием каких-либо украшений, даже остекление балконов в «хрущевках» считалось в то время большой роскошью. На одном этаже располагались четыре квартиры, в которых размещались одна, две комнаты, со смежными стенами и плохой звукоизоляцией, совмещенным санузлом и маленькой кухней.Но даже в таких непростых условиях люди находили правильные решения бытовых проблем. Возьмем, к примеру, конструкцию встроенного шкафа для хранения продуктов. Толщина стен составляла около полкирпича, и в морозы это была неплохая замена холодильнику.
Квартиры, конечно, были маленькие, с минимумом удобств, но в то время для людей и это было счастьем. Такие дома в основном строились в крупных городах. Этот процесс шел огромными темпами, что сказалось на качестве жилья.
Планы этажей.
Однокомнатная квартира.
Двухкомнатная квартира.
Трехкомнатная квартира.
Брежневка (план Брежнева).
Брежневка — это улучшенная «хрущевка». В этих домах площадь комнат больше, а кухни даже семиметровые.
Характеристики домов
Нетрудно догадаться, откуда произошло их название: дома были построены во времена правления Брежнева.Большим преимуществом брежневки является то, что межкомнатные стены в этих домах несущие. В различных регионах нашей страны в наших представлениях о серии типовых домов самая большая путаница касается брежневки.
В общепринятом понимании по «пермским» нормам выделяют несколько серий типовых домов, отнесенных специалистами рынка недвижимости к брежневке:
ЩЕТКИ ПЯТИЭТАЖНЫЕ «ГРУДЬ»
5-этажных домов с улучшенными планировочными параметрами квартир по сравнению с хрущевками.В коридорах предусмотрено место для встроенного шкафа, совмещенные санузлы допускаются только в 1-комнатных квартирах, все квартиры имеют балконы.
Особенности:
o Плоская крыша;
o Балконы парные;
o В крайних подъездах по 4 квартиры на этаже (2 справа — 2 слева) в средних подъездах по 3 квартиры;
o помещения изолированные или на трамвае;
o Санузлы в 2,3,4 номерах всегда раздельные, в 1 номере могут быть совмещенными и раздельными.Если санузел совмещен, кухня больше;
o Есть 4-х комнатные квартиры, но только угловые (62 кв.м. 1 Изолир + 3 Смежные)
o Из-за материала стен более востребована кирпичная «брежневка».
o Планировки квартир аналогичны панельной «брежневке».
Макеты:
Однокомнатная квартира
Двухкомнатная квартира
Трехкомнатная квартира
Панель «Брежневка» 5 эт.
Брежневыми в народе называют дома постройки 60-70-х годов. Прихожие еще такие маленькие, а вот кухня заметно увеличилась до 6-7 квадратных метров.
Проходные комнаты ушли в прошлое, теперь все комнаты изолированные, а в больших квартирах окна выходят на обе стороны дома. К сожалению, ванн с туалетом осталось очень мало. Большинство стен несущие, поэтому возможности для перепланировки очень ограничены, можно лишь немного расширить кухню за счет коридора и так маленького санузла.Дома панельные, поэтому потолки, стены и пол идеально ровные, но зимой холодно, и батареи встроены в стену. Самые холодные угловые квартиры, их жильцам приходится проводить дополнительное отопление или покупать радиаторы.
Макеты:
Однокомнатные квартиры:
Квартиры с одной спальней:
Трехкомнатные квартиры:
Брежневка девятая, четырнадцатиэтажная.
Брежневка — многоэтажный жилой дом (обычно 9 или 14 этажей), сложенный из кирпича, массовое строительство которого пришлось на 70-80-е годы прошлого века. В отличие от хрущевки, он оборудован лифтом и желобом. Брежневку часто можно узнать по ключевой фразе «Квартира улучшенной планировки».
Макеты:
Однокомнатные квартиры:
Квартиры с одной спальней:
Серая панель.
Это квартиры следующего (после хрущевки) поколения. 9-этажные дома с мусоропроводом и лифтами. Дома построены из железобетонных панелей. Параметры квартир в этих домах соответствуют стандарту массового жилья: площадь кухни не менее 7 кв.м, отдельные санузлы, прихожие и коридоры оборудованы встроенными шкафами и антресолями. Высота потолков 2,6 м, комнаты в двухкомнатной изолированные, в трехкомнатной смежно-изолированные, есть балконы и лоджии.На участке 4 квартиры. В таких домах, как правило, 2-х и 3-х комнатные квартиры. Площадь кухни от 7, 5 до 10 м². В однокомнатных квартирах комнаты изолированные. Есть лифт, мусоропровод, лоджия или балкон. Особенность планировок «серая панель» в том, что в них нет четырехкомнатных квартир, однокомнатные встречаются крайне редко. Квартиры с 3 спальнями 4 типов:
o Стандарт: 1 Изолир + 2 на трамвае + балкон + лоджия (S 62/43/7,5)
o Нестандарт: 1 Изолир + 2 трамвая + балкон + лоджия (S 70/48/9,5) В Китайской стене на стыках домов.
o Угловой с балконом: 1 Изолир + 2 на трамвае + балкон (S 57/38/9.5)
o Угловая: 1 Изолира + 2 смежных + 2 лоджии (S 57/38/7,5)
Типовая планировка этажа:
Двухкомнатная квартира:
Трехкомнатная квартира:
Схема крайних подъездов:
85 серия — девятидесятиэтажные дома, часто облицованные фасадной плиткой.В этих домах в основном 2-х и 3-х комнатные квартиры, меньший процент 1-х и 4-х комнатных квартир.
Особенности 85 серии — маленькие площади квартир. В 2-х комнатной квартире, общей площадью 54 кв.м., жилой 29-30 кв.м., кухни от 7,5 до 8 кв.м., планировка удобная — кухня посередине, между двумя комнаты, большая лоджия, квадратная прихожая. Трехкомнатная планировка неудачна из-за длинного узкого коридора, узкой вытянутой кухни площадью 8-11 кв.м. и небольшая жилая площадь — 38-39 кв.м (одна из комнат совсем маленькая, 9 кв.м) общей площадью до 65 кв.м.
Макеты:
Двухкомнатная квартира:
Трехкомнатная квартира:
97 серия — 5, 10 или 16-этажные дома, строительство которых началось в Перми с конца 80-х гг. Наибольшее распространение дома этого типа получили в спальных районах (Парковый, Садовый, проспект Декбристов.). строительство домов этой серии продолжается и по настоящее время.
Однокомнатная квартира:
Двухкомнатная квартира:
Трехкомнатная квартира:
Шестнадцатиэтажные дома:
Серия Е-600.
Дома серии Е-600 (600-я серия) в г. Перми строятся с начала 90-х годов ХХ века по настоящее время.Несмотря на то, что это панельные дома, они имеют ряд преимуществ по отношению к панельным домам предыдущих серий, более удобную планировку, повышенную шумо- и теплоизоляцию. Дома этой серии могут быть от 5 до 16 этажей, однако наиболее распространены 10-этажные дома.
Дома этой серии имеют множество различных планировок, наиболее распространенными в Перми являются следующие.
Типовые планы этажей:
07.10.2013
В 1973 году была разработана планировка улучшенной массовой застройки домов. Так появился такой вид домов, как « брежневка ».
Отличие такого дома от всех известных домов заключалось в том, что они строились с использованием железобетонных панелей. Лестницы стали более свободными, а количество квартир на посадка уменьшилась.И главное их отличие было в том,что они строились в высоту,их примерная высота была от 9 до 16 этажей.Но иногда они были выше. Коридор в квартире остался таким же маленьким, но, несмотря на это, в планах двухкомнатных квартир, где окна выходят в разные стороны, размеры коридора все же увеличились. В планировке квартир с одной комнатой появился коридор, который используется для отделения кухни от комнаты, так как в хрущевке вход на кухню был прямо через комнату. При этом жилая площадь уменьшилась до 28 и 15 квадратных метров.метров, соответственно, одно- и двухкомнатные квартиры. В двух- и трехкомнатных квартирах изменена планировка, в которой нет проходных комнат, с отдельными санузлами. Также в это время уже начали появляться четырехкомнатные квартиры. Новая планировка положительно сказалась на высоте потолков, она увеличилась до 2,7 м.
В этих домах обязательно строили лифт и мусоропровод. Секцию из двух квартир спрятали в так называемый «карман». И даже если сравнивать такие дома с «хрущевками», они действительно имели улучшенную планировку, но даже для «сталинцев» не подходили.Кухня в такой квартире размером от семи до девяти квадратных метров, а потолки ниже, чем в той же «сталинке». Комнат может быть от одной до пяти. В этом случае общая площадь будет равняться от 20 до 80 квадратных метров.
Основными отличиями таких зданий являются наличие мусоропровода и лифта, а также довольно большая площадь и этажность. В домах брежневок уже есть отдельный санузел.Благодаря этим домам появилось разнообразие форм, например, высокие и широкие постройки. А так же самая главная особенность это наличие на кухне шкафа под окном, в народе его называли хрущевским холодильником, так как он появился еще во времена Хрущева.
Брежневка были очень популярны в районах, где велась массовая застройка в 1960-х — 1970-х годах. В связи с бурным развитием промышленности нужно было создавать новые дома для рабочих, но не тратить много денег.Поэтому в эти годы и родились такие интересные планы новостроек.
Прошло много лет, но при всем при этом значительное количество населения продолжает жить в тех домах, которые еще были построены в те далекие времена. И даже несмотря на то, что в нашей стране идет активное строительство новостроек, все же эти люди не лишены надежды на то, что в будущем государство сможет помочь им с жильем. Но эти дома очень часто встречаются совсем разрушенными, а есть и такие, которые вполне пригодны для жизни.
12 лучших современных интерьеров квартир-студий
Небольшая стандартная квартира может превратиться в очень уютную однокомнатную квартиру. В дизайне которого будут учтены все потребности проживающей в нем семьи. Привычная планировка, разделяющая жилую площадь на несколько комнат и кухню, как правило, маленькую, уже не может обеспечить современный комфорт. Особенно для тех квартир, которые имеют небольшую площадь, и одновременно служат жильем для двух и более человек.Ниже мы рассмотрим несколько вариантов дизайна квартир-студий разной площади. Представляем вашему вниманию 12 лучших современных интерьеров квартир-студий, которые имеют разную площадь.
Дизайн квартир-студий
1. Дизайн интерьера небольшой квартиры-студии 14 кв.м.
Крошечная однокомнатная квартира, на 14 «квадратах» которой нужно было уместить и кухню, и гостиную яркий пример грамотного использования студийной планировки.В интерьере прихожей, рядом с дверью в санузел разместили мини-гардеробную, напротив кухонную мебель со столешницей и встроенной техникой. Холодильник разместили на границе с гостиной, он служит разделяющим элементом. Кроме того, между кухней-прихожей и гостиной повесили занавеску, чтобы сделать комнату более интимной.
В интерьере гостиной нашлось место не только раскладному дивану, но и отдельной зоне отдыха.Которая одновременно служит обеденной зоной. Пришлось отказаться от стандартной мебели, это позволило сэкономить драгоценные сантиметры пространства. Вся мебель изготавливалась «на месте» и наделялась сразу несколькими функциями.
Обеденный стол переворачивается и опускается, занимая место между мягкими стульями, а вся конструкция превращается в удобную кушетку, дополнительное место для отдыха или гостевое спальное место. Ящики для хранения предметов домашнего обихода размещают под креслами. Кроме того, под диваном есть большой ящик и шкаф, украшенный узкими зеркальными полосками.Они зрительно увеличивают небольшую площадь комнаты.
Серый и белый – основные цвета в студийном дизайне, позволяющие сделать пространство больше и светлее. Их гармонично дополняют деревянные детали цвета натурального дерева. Бирюзовый и лимонный цвета в текстильных деталях добавляют интерьеру яркости и выразительности.
2. Дизайн-проект малогабаритной квартиры-студии (площадь 20 кв.м.)
Дизайн интерьера студии выполнен в стиле минимализм.Сразу от входа начинается объемная система хранения. Который переходит в два отдельных яруса полок вверху и внизу в гостиной-спальне, между которыми выстроена ТВ-зона и столешница рабочего стола домашнего кабинета. Кухня расположена за санузлом, отделена от прихожей собственной системой хранения со встроенной рабочей поверхностью.
В дизайне однокомнатной квартиры. Г-образное расположение кухонной мебели позволяет выделить место для небольшой барной стойки.Которая также служит обеденной зоной.
Рядом с окном расположена гостиная, которая ночью превращается в спальню, большой диван раскладывается, образуя удобное спальное место для двоих.
Основная идея проекта – раздвижная зеркальная перегородка, разделяющая кухню и гостиную. Каждая из трех частей этой перегородки движется независимо от других, поэтому комнату и кухню можно разделить частично или полностью. Зеркальная поверхность зрительно почти вдвое увеличивает пространство и усложняет его за счет игры отражений, что привносит в интерьер глубину и объем.
3. Дизайн однокомнатной квартиры в оранжево-белых тонах (площадь 22 кв.м.)
Основной идеей проекта стала «стена», разделяющая прихожую и кухню. Со стороны входа в квартиру-студию расположен шкаф для одежды, устроенный по принципу «купе» и оборудованный зеркальными дверцами, чтобы не уменьшать пространство. Торец «стены» обращен к дивану в гостиной, поэтому здесь нашла свое место ТВ-панель, обеспечивающая просмотр фильмов и телепередач.
Диван раскладывается на ночь, получается удобное место для сна. Подоконник в гостиной был заменен столешницей, которая служит обеденной зоной и письменным столом для домашнего офиса.
С другой стороны «стены», обращенной к окну, в нее встроена кухня, сама рабочая поверхность, а под ней и над ней шкафы. Там разместили всю необходимую технику, включая посудомоечную и стиральную машины.
Из «кухни» выход на балкон превратился в лаунж-зону.Белый цвет в оформлении мебели и стен зрительно увеличивает объем помещения, а сочный желтый в качестве акцентного цвета создает радостное, солнечное настроение.
4. Дизайн прямоугольной квартиры-студии с одним окном (площадь 29 кв.м.)
Планировка студии небольшая 29 кв.м изначально была очень неудобной: узкая комната, вытянутая в длину, имела одно окно в торцевой стене, что исключало разделение на две отдельные комнаты. Однако на отведенном пространстве нужно было разместить и гостиную, и зону для приготовления пищи.
Прихожая спланирована традиционно, санузел расположен напротив вместительного гардероба. За входом в квартиру-студию расположена кухня, шкаф продолжается кухонной системой хранения со встроенной бытовой техникой, напротив которой расположена угловая рабочая поверхность с рядом шкафов под ней и закрытыми навесными полками сверху. Кухня заканчивается небольшой барной стойкой, ровно на границе с гостиной.
В гостиной небольшой удобный диван и ТВ-панель на стене напротив.Однако его наличие является большим плюсом, так как позволяет смотреть телевизор, не мешая тем, кто уже ушел отдыхать. Возле единственного окна находится спальня; в нем есть двуспальная кровать и небольшой консольный столик, который служит гардеробной. Рядом с ним удобный пуфик.
Основная идея проекта – перегородка, разделяющая гостиную и спальню. Он имеет круглые отверстия, через которые дневной свет проникает внутрь помещения. Помимо усиления освещения, эти отверстия вносят в интерьер интересные световые пятна, создавая эффект движения и смягчая строгий черно-белый минималистичный дизайн.
5. Дизайн-студия в скандинавском стиле (площадь 28 кв.м.)
Основная идея дизайна квартиры-студии – использование белого цвета в сочетании с натуральным цветом и фактурой дерева.
Неудачная Г-образная планировка была визуально уравновешена с помощью колонны-колонны на границе кухни и жилых зон, а недостаток естественного света на кухне компенсировался внутренней подсветкой шкафов.
Сочетание белых стен, потолков, мебели с теплыми деревянными полами, столешницей, откидными столиками и барными стульями мини-столовой, расположенной в гостиной, создает светлый, просторный интерьер, но в то же время очень уютный.
Яркие сиреневые текстильные элементы добавляют красок интерьеру диванных подушек и ковра под журнальным столиком.
6. Интерьер однокомнатной квартиры-студии 30 кв.м. в хрущевке
Однокомнатная «хрущевка» в результате сноса стен получила дополнительную площадь. Большим плюсом квартиры было два окна, что позволило создать светлую, современную жилую площадь.
Белые и светло-серые оттенки – основные тона интерьера.Которые органично дополняются легкой текстурой дерева. Два плаката красного и желтого цветов были размещены на стене в качестве смелых цветовых акцентов.
Однокомнатная квартира имеет четыре зоны вход, гостиную, спальню, кабинет и кухню. Их визуально разделяют разные оттенки пола и стен.
Одна из главных идей дизайна квартиры-студии – создать уютный интерьер. Где можно с комфортом отдыхать и работать, и при этом иметь достаточно места для хранения предметов домашнего обихода.Для этого в гостиной разместили большой шкаф купейной системы, по цвету сливающийся со стенами и практически незаметный для глаза. Над рабочим столом повесили полки для книг, а кухню оборудовали двумя ярусами закрытых полок.
Легендарные вещи старинный письменный стол, чугунная подставка для книг и старинное зеркало привносят в интерьер особую семейную атмосферу. В то время как дизайнерские стулья для обеденного стола придают интерьеру современный вид.
7. Однокомнатная квартира в современном стиле, 32 кв.м.
Окно в этой маленькой студии негабаритно меньше по высоте, чем обычные окна. Чтобы исправить этот недостаток, дизайнеры использовали два приема: само окно закрывалось вертикальными жалюзи «в пол», что позволяло скрыть его реальные размеры.
Света добавили с помощью потолочной подсветки и обилия отражающих поверхностей в дизайне и интерьере это и глянцевая плитка на полу, и прозрачные пластиковые стулья у барной стойки, и глянцевая отделка мебельных фасадов.В сочетании с обилием источников света этот прием позволил эффектно воспринимать интерьер.
Неудобный выступ в комнате дизайнеры превратили в визуально выделенный рабочий кабинет.
Спальня в дизайне квартиры-студии отделена от остальных зон «стеной», представляющей собой вместительную систему хранения со стороны прихожей, глубокие книжные полки в гостиной и открытые ниши сбоку спальни, нижняя из которых выполняет роль прикроватной тумбочки.
8. Однокомнатная квартира 33 кв.м.
Эта однокомнатная квартира в традиционном стиле подойдет для небольшой семьи. Для двоих очень удобно, несмотря на свои компактные размеры. Бежево-коричневая гамма отделки придает интерьеру теплоты и уюта.
Стены, разделяющие комнаты, отсутствуют, но спальное место в интерьере спрятано от глаз в нише, образованной вместительной системой хранения со стороны прихожей.Вход в нишу закрывается легкой, но плотной занавеской, обеспечивающей интимную атмосферу.
Места хватило и для обеденной зоны Круглый стол на границе гостиной и кухни позволит с комфортом разместиться троим.
9. Лаконичный дизайн однокомнатной квартиры с отдельной спальней (площадь 34 кв.м.)
Дизайн однокомнатной квартиры выдержан в белых тонах. Что делает мебель незаметной на фоне стен.Грубый деревянный журнальный столик и толстые табуретки из лозы рядом с ним подчеркивают скандинавский стиль интерьера. Национальные узоры на подушках добавляют колорита.
Сочетание белых поверхностей с натуральным деревом и натуральными, естественными цветами делает этот интерьер по-настоящему стильным.
Основная идея проекта – спальня, выделенная стеклянными перегородками, дополненная плотными шторами. Это дает возможность создать в комнате камерность основной зоны, и в то же время не создавать впечатление загроможденного пространства.
10. Дизайн-проект однокомнатной квартиры 40 кв.м.
В этом проекте функциональные зоны разделены не только визуально, за счет разницы материалов отделки. Кроме того, они разнесены на разные уровни, что усложняет восприятие интерьера и делает его более интересным. Каждая из зон также имеет свое освещение.
Нейтральные тона интерьера поддерживают ощущение открытого пространства и простора.
Спальня по проекту студии поднята на подиум и отделена перегородкой из стеклянных панелей от гостиной, таким образом, декоративное панно на стене спальни визуально включается в общее пространство. На подиуме, помимо кровати, есть большой шкаф для одежды и различных предметов быта.
Рядом со спальней находится диван в гостиной. В интерьере гостиной предусмотрено два удобных рабочих места, над которыми расположены полки для книг.
11. Квартира-студия с барной стойкой, 40,3 кв.м.
Планировка студии вполне традиционная, есть все стандартные зоны прихожая, гостиная, спальня, кухня.
Так как однокомнатная квартира принадлежит молодой семье. Дизайнеры решили поэкспериментировать и применили нестандартные ходы в дизайне и отделке. Так, деревянный пол «поднимается» на стену в гостиной.
Кухня и гостиная в дизайне студии разделены высокой барной стойкой.В котором удобно принимать гостей.
Традиционное кресло заменили на мягкое кресло-пуф, а в светлый интерьер смело добавили графические черные акценты. Это и занавеска, отделяющая кровать от остальной комнаты, светильники, мебель, и черные пересекающиеся линии на внешней стене ванной комнаты, идущие и в гостиную, и в прихожую, и на кухню.
Отдельного рассмотрения заслуживает дизайн кухни в однокомнатной квартире.Он компактный, но вместительный. Она визуально отделена от жилого пространства квартиры-студии барной стойкой и напольным покрытием. Здесь это керамогранит, в отличие от деревянной части в гостиной.
Навесные шкафы в интерьере занимают только одну из стен. Другой оставляют свободным, только на нем закрепляют круглую вытяжку, расположенную над варочной панелью. Столешница из светлого дерева и такая же барная стойка гармонируют с деревянными фасадами верхнего ряда шкафов. В дизайне студии черные подвесные светильники над барной стойкой подчеркивают зонирование.
12. Дизайн в стиле лофт (площадь квартиры-студии 42 кв.м.)
Лофт – это стиль, позволяющий интересно и необычно оформить даже небольшое пространство, не теряя при этом функциональности.
Выполнена зачищенная до кирпичной кладки наружная стена. Главный декоративный элемент интерьера также был окрашен в белый цвет, слегка затемнив швы и дефекты кладки. Визуальное зонирование осуществляется за счет контрастного напольного покрытия, а также за счет повышения уровня спальни.
Кухня и гостиная в проекте однокомнатной квартиры объединены и имеют выход в лаунж-зону, устроенную на балконе. Одна из стен гостиной окрашена в темно-серый цвет.









Также можно использовать мобильные перегородки или стеллаж с открытыми полками. Однако следует помнить, что громоздкие перегородки способны визуально уменьшить пространство.



В данном стиле также преобладают светлые оттенки в интерьере, но допускается дополнительный декор в виде картин, декоративных предметов и цветов. При этом главный акцент делается на функциональности и комфорте.
Основной светлый цвет разбавляется естественной природной палитрой. Мебель может быть состаренной, с облупленной краской или сколами на дереве. Дополнить интерьер можно уникальными предметами: сундуком или старым комодом. Шторы и занавески должны быть легкими и полупрозрачными, допускается средняя длина до подоконника. В качестве декора приветствуется большое количество рюшей, кружева, скатертей и керамических статуэток.
Также можно использовать мобильные перегородки или стеллаж с открытыми полками. Однако следует помнить, что громоздкие перегородки способны визуально уменьшить пространство.


В данном стиле также преобладают светлые оттенки в интерьере, но допускается дополнительный декор в виде картин, декоративных предметов и цветов. При этом главный акцент делается на функциональности и комфорте.
Основной светлый цвет разбавляется естественной природной палитрой. Мебель может быть состаренной, с облупленной краской или сколами на дереве. Дополнить интерьер можно уникальными предметами: сундуком или старым комодом. Шторы и занавески должны быть легкими и полупрозрачными, допускается средняя длина до подоконника. В качестве декора приветствуется большое количество рюшей, кружева, скатертей и керамических статуэток.
Также можно использовать мобильные перегородки или стеллаж с открытыми полками. Однако следует помнить, что громоздкие перегородки способны визуально уменьшить пространство.



В данном стиле также преобладают светлые оттенки в интерьере, но допускается дополнительный декор в виде картин, декоративных предметов и цветов. При этом главный акцент делается на функциональности и комфорте.
Основной светлый цвет разбавляется естественной природной палитрой. Мебель может быть состаренной, с облупленной краской или сколами на дереве. Дополнить интерьер можно уникальными предметами: сундуком или старым комодом. Шторы и занавески должны быть легкими и полупрозрачными, допускается средняя длина до подоконника. В качестве декора приветствуется большое количество рюшей, кружева, скатертей и керамических статуэток.
0 thoughts on “Дизайн 2 комнатной хрущевки 42 квадратных метра: особенности ремонта в «хрущевке» без перепланировки, идеальные решения по планировке двухкомнатной квартиры со смежными комнатами”